Maison neuve à
Cadalen
(81600) Référence :
GO2485728_10
Prix du projet : Maison avec Terrain
prix 291 990 €
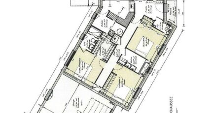
- 4 pièces
- 3 chambres
- Surface maison 125 m2
Villa d'Espace et de Lumière à Cadalen
Vivez l'exceptionnel sur 125 m² - Tout le confort moderne aux portes d'Albi.
L'agence Maisons France Confort Albi vous présente cette magnifique maison de 4 pièces, une opportunité rare alliant architecture contemporaine et volumes généreux. Située à Cadalen (81600), cette villa neuve de plain-pied est pensée pour offrir une fluidité de vie inégalée.
✨ Pourquoi cette maison est-elle unique ?
Espace de Vie Hors Norme : Une surface de 125 m² entièrement de plain-pied, offrant de vastes volumes baignés de lumière.
Côté Nuit & Confort : 3 grandes chambres spacieuses et 2 salles de bains pour l'intimité et le confort de toute la famille.
Vie Intérieure/Extérieure : Une conception fluide ouverte sur un terrain de 620 m², parfait pour vos projets de terrasse plein sud ou de jardin paysager.
📍 Un cadre de vie idéalement situé :
Services & Loisirs : École primaire et épicerie de village à deux pas.
Connectivité : Accès rapide à l'A68 et la N88 (moins de 9 km).
Le calme proche de la ville : Profitez de la douceur de vivre de Cadalen à seulement 15 km d'Albi.
💰 Prix de vente : 291 990 €
Pour de plus amples renseignements contactez notre agence Maison France Confort ALBI au 05 63 43 56 40.
Maisons France Confort Albi : Votre partenaire de confiance à chaque étape de votre achat.
Annonce proposée par un Agent Commercial Partenaire.
Mentions légales
Terrain proposé par un partenaire foncier selon disponibilités et autorisation de publicité au prix de 60 000 €. Hors droit d'enregistrement et frais de notaire. Terrain + Maison proposés au prix de 291 990 € (Hors branchements et raccordements, papiers peints, peintures, revêtement de sol dans les chambres. Tarif modifiable sans préavis). Etiquette énergie : A. Différents modèles disponibles pour ce terrain. Assurances et garanties du constructeur (RC professionnelle, décennale, dommage ouvrage, garantie de remboursement de l'acompte, livraison à prix et délai convenu) : https://www.maisons-france-confort.fr/mentions-legales/. HEXAOM Services est enregistré auprès de l'ORIAS en tant que Courtier en financement, Niveau 1, sous le numéro 14001345.Agence Maisons France Confort de Albi (81000)
- Téléphone :
- 05 63 43 56 40
- Adressse :
- 187 avenue Colonel Teyssier
81000 Albi, France
