Maison neuve à
Cadenet
(84160) Référence :
GB2493915_1
Prix du projet : Maison avec Terrain
prix 312 000 €
- 4 pièces
- 3 chambres
- Surface maison 80 m2
Nouveauté sur Cadenet,
Coup de coeur assuré pour ce magnifique lotissement déjà sortie de terre, prêt à construire !
Idéalement situé, au calme mais aussi proche de toutes commodités, école, transport, axes routiers.
Maisons France Confort Cabriès et son partenaire foncier ont sélectionné pour vous cette magnifique parcelle de terrain plane et viabilisé d'une superficie de plus de 400m2, parfaite pour accueillir votre future maison.
Parce que notre métier est de construire la maison qui vous ressemble !!!
Exemple de projet ( modifiable selon vos envies, optimisé et adapté à votre budget )
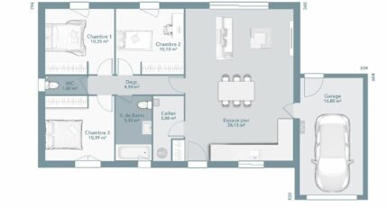
° Maison de plain-pied
° 80 m2 habitable
° Belle pièce de vie ouverte sur l'extérieur
° Trois grandes chambres
° SDB - WC séparé
° Grande baie vitrée
° Conforme aux dernières normes (RE 2020)
Son prix : Terrain + Maison = 312 000 euros HORS FRAIS DE NOTAIRE, GARAGE ET TAXES
Mr Geoffrey BITANGA vous accompagne de la sélection de votre futur terrain, à la conception et réalisation de votre future habitation, selon vos envies et votre budget.
Joignable au o6-22-75-52-83_ o4-42-02-85-99
Mentions légales
Terrain proposé par un partenaire foncier selon disponibilités et autorisation de publicité au prix de 169 900 €. Hors droit d'enregistrement et frais de notaire. Terrain + Maison proposés au prix de 312 000 €. Tarif modifiable sans préavis. Etiquette énergie : A. Différents modèles disponibles pour ce terrain. Assurances et garanties du constructeur (RC professionnelle, décennale, dommage ouvrage, garantie de remboursement de l'acompte, livraison à prix et délai convenu) : https://www.maisons-france-confort.fr/mentions-legales/. HEXAOM Services est enregistré auprès de l'ORIAS en tant que Courtier en financement, Niveau 1, sous le numéro 14001345.Agence Maisons France Confort de Cabriès (13480)
- Téléphone :
- 04 42 02 85 99
- Adressse :
- Villa 07 Expobat - Plan de Campagne
13480 Cabriès, France
