Maison neuve à
Cailhau
(11240) Référence :
SE2490339_9
Prix du projet : Maison avec Terrain
prix 287 599 €
- 6 pièces
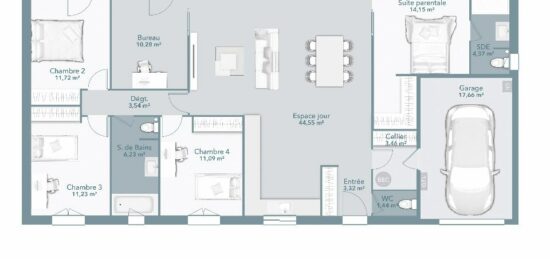
- 5 chambres
- Surface maison 125 m2
VENTE : maison de 6 pièces (125 m²) à Cailhau
EMPLACEMENT PRIVILÉGIÉ - MAISON 6 PIÈCES NEUVE
À vendre : située à quelques kilomètres de Carcassonne, nous vous présentons, bénéficiant d'un emplacement d'exception dans Cailhau (11240), cette maison de 6 pièces de plain-pied de 125 m² et de 2 098 m² de terrain.
Elle est composée de cinq chambres, d'une cuisine et de deux salles de bains. Cette maison est neuve.
Cette maison est située dans un quartier recherché. Plusieurs établissements scolaires (maternelle, élémentaire, primaire et lycée) sont implantés à moins de 10 minutes en voiture, tout comme une structure d'accueil pour les enfants en bas âge à moins de 10 minutes à pied. On trouve des tennis, deux bassins de natation, une bibliothèque, des commerces, trois bureaux de poste, quatre boucheries-charcuteries et des épiceries dans les environs.
Son prix de vente est de 287 599 €.
Contactez Stéphane EMBID (06-65-50-56-62) pour toute question sur la maison.
Mentions légales
Terrain proposé par un partenaire foncier selon disponibilités et autorisation de publicité au prix de 97 916 €. Hors droit d'enregistrement et frais de notaire. Terrain + Maison proposés au prix de 287 599 € (Hors branchements et raccordements, papiers peints, peintures, revêtement de sol dans les chambres. Tarif modifiable sans préavis). Etiquette énergie : A. Différents modèles disponibles pour ce terrain. Assurances et garanties du constructeur (RC professionnelle, décennale, dommage ouvrage, garantie de remboursement de l'acompte, livraison à prix et délai convenu) : https://www.maisons-france-confort.fr/mentions-legales/. HEXAOM Services est enregistré auprès de l'ORIAS en tant que Courtier en financement, Niveau 1, sous le numéro 14001345.Agence Maisons France Confort de Carcassonne (11000)
- Téléphone :
- 04 68 47 39 25
- Adressse :
- 73 bis avenue du Général Leclerc
11000 Carcassonne, France
