Maison neuve à
Calonne-Ricouart
(62470) Référence :
FW2466317_5
Prix du projet : Maison avec Terrain
prix 230 000 €
- 5 pièces
- 3 chambres
- Surface maison 83 m2
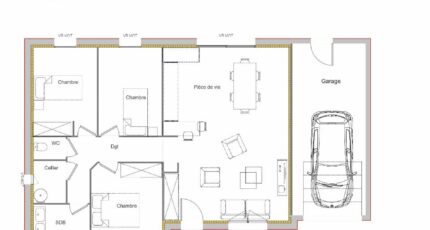
VENTE d'une maison de 5 pièces (83 m²) à Calonne-Ricouart
PROCHE D'ARRAS - MAISON 5 PIÈCES NEUVE
À vendre : à quelques kilomètres d'Arras et Béthune, à Calonne-Ricouart (62470), nous vous proposons cette maison de 5 pièces de plain-pied de 83 m². Son intérieur se divise en trois chambres, une cuisine et une salle de bains.
Le terrain du bien s'étend sur 424 m².
La maison est neuve.
Il y a cinq établissements scolaires à moins de 10 minutes à pied. Côté transports en commun, on trouve la gare Calonne-Ricouart à proximité. Il y a un accès à l'autoroute A26 à 7 km. Il y a une bibliothèque, quatre commerces et un bureau de poste dans les environs. Le marché Place Lannoy a lieu chaque jeudi matin.
Elle est à vendre pour la somme de 230 000 €. TVA à 5.5% suivant conditions de ressources
Prenez contact avec Franck WALRYCK (tél : 06-80-22-74-64) pour tout renseignement sur cette propriété.
Mentions légales
Terrain proposé par un partenaire foncier selon disponibilités et autorisation de publicité au prix de 60 300 €. Hors droit d'enregistrement et frais de notaire. Terrain + Maison proposés au prix de 230 000 € (Hors branchements et raccordements, papiers peints, peintures, revêtement de sol dans les chambres. Tarif modifiable sans préavis). Etiquette énergie : A. Différents modèles disponibles pour ce terrain. Assurances et garanties du constructeur (RC professionnelle, décennale, dommage ouvrage, garantie de remboursement de l'acompte, livraison à prix et délai convenu) : https://www.maisons-france-confort.fr/mentions-legales/. HEXAOM Services est enregistré auprès de l'ORIAS en tant que Courtier en financement, Niveau 1, sous le numéro 14001345.Agence Maisons France Confort de Béthune (62400)
- Téléphone :
- 03 21 02 07 45
- Adressse :
- 112 bd Jean Moulin
62400 Béthune, France
