Maison neuve à
Calvisson
(30420) Référence :
AM2389028_1
Prix du projet : Maison avec Terrain
prix 344 900 €
- 4 pièces
- 3 chambres
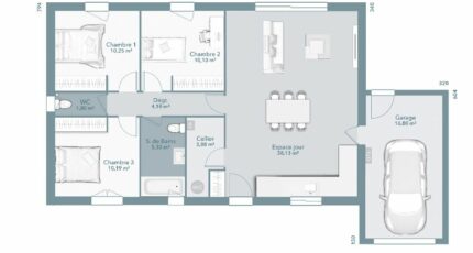
- Surface maison 83 m2
VENTE d'une maison T4 (83 m²) à Calvisson
EMPLACEMENT PRIVILÉGIÉ - MAISON 4 PIÈCES NEUVE
À 27 km de la côte méditerranéenne et à 13 km de Nîmes, nous vous proposons cette maison de 4 pièces de 83 m² avec vue sur espace vert bénéficiant d'un emplacement privilégié dans Calvisson (30420).
Il s'agit d'une maison de plain-pied. Son intérieur propose trois chambres, une cuisine et une salle de bains. Cette maison est neuve.
Le terrain du bien s'étend sur 671 m².
La propriété se trouve dans un quartier attractif. Cinq établissements scolaires sont implantés à moins de 10 minutes à pied, tout comme une crèche. Côté transports, il y a quatre gares à moins de 10 minutes en voiture. L'autoroute A9 et la nationale N113 sont accessibles à moins de 9 km. On trouve un tennis, un bassin de natation, trois boulangeries, des commerces, un supermarché, trois épiceries et un bureau de poste dans les environs.
Elle est proposée à l'achat pour 344 900 €.
Contactez Alexandre MATUSZ (tél : 06-38-58-43-41) pour plus de renseignements sur la maison.
Annonce proposée par un Agent Commercial Partenaire.
Mentions légales
Terrain proposé par un partenaire foncier selon disponibilités et autorisation de publicité au prix de 199 000 €. Hors droit d'enregistrement et frais de notaire. Terrain + Maison proposés au prix de 344 900 € (Hors branchements et raccordements, papiers peints, peintures, revêtement de sol dans les chambres. Tarif modifiable sans préavis). Etiquette énergie : A. Différents modèles disponibles pour ce terrain. Assurances et garanties du constructeur (RC professionnelle, décennale, dommage ouvrage, garantie de remboursement de l'acompte, livraison à prix et délai convenu) : https://www.maisons-france-confort.fr/mentions-legales/. HEXAOM Services est enregistré auprès de l'ORIAS en tant que Courtier en financement, Niveau 1, sous le numéro 14001345.Agence Maisons France Confort de Saint-Gély-du-Fesc (34980)
- Téléphone :
- 04 67 66 49 65
- Adressse :
- 22 rue des lavandes
34980 Saint-Gély-du-Fesc, France
