Maison neuve à
Cambes-en-Plaine
(14610) Référence :
JS2389498_11
Prix du projet : Maison avec Terrain
prix 224 000 €
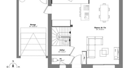
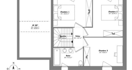
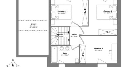
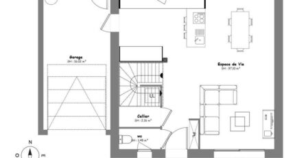
- 5 pièces
- 3 chambres
- Surface maison 85 m2
Thaon : maison de 5 pièces (85 m²) en vente
Idéalement située - À Thaon (14610), maison neuve à vendre de 5 pièces, 2 niveaux, 85 m² de surface et 377 m² de terrain. Elle offre trois chambres, une cuisine et une salle de bains.
Proche gares (Saint-Germain-en-Laye Bel-Air-Fourqueux T13 et Bretteville-Norrey), École Primaire Yvonne Guégan, tennis, boulangerie et épicerie. Nationales N13 et N814 à 8 km. Caen à 10 km.
Cette maison de 5 pièces est à vendre pour la somme de 224 000 €.
N'hésitez pas à prendre contact avec notre agence (HUE Emilie : 06-29-81-46-66) pour toute information sur la maison. Maisons France Confort Bayeux est là pour vous accompagner dans toutes vos démarches.
Annonce proposée par un Agent Commercial Partenaire.
Mentions légales
Terrain proposé par un partenaire foncier selon disponibilités et autorisation de publicité au prix de 79 000 €. Hors droit d'enregistrement et frais de notaire. Terrain + Maison proposés au prix de 224 000 € (Hors branchements et raccordements, papiers peints, peintures, revêtement de sol dans les chambres. Tarif modifiable sans préavis). Etiquette énergie : A. Différents modèles disponibles pour ce terrain. Assurances et garanties du constructeur (RC professionnelle, décennale, dommage ouvrage, garantie de remboursement de l'acompte, livraison à prix et délai convenu) : https://www.maisons-france-confort.fr/mentions-legales/. HEXAOM Services est enregistré auprès de l'ORIAS en tant que Courtier en financement, Niveau 1, sous le numéro 14001345.Agence Maisons France Confort de Bayeux (14400)
- Téléphone :
- 02 31 51 20 91
- Adressse :
- 2, rue Saint Loup
14400 Bayeux, France
