Maison neuve à
Cambremer
(14340) Référence :
AV2471565_1
Prix du projet : Maison avec Terrain
prix 238 000 €
- 5 pièces
- 3 chambres
- Surface maison 75 m2
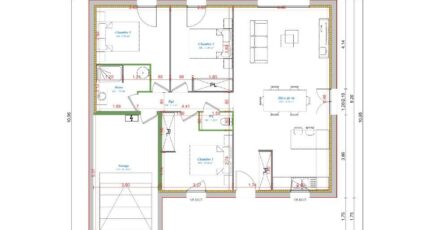
Maisons France Confort Lisieux vous propose de construire cette maison de plain pied de 78m².
Il se compose d'une entrée avec placard, une belle pièce de vie lumineuse
Dans l'espace nuit, 3 chambres et une salle de bain.
Un accès au garage depuis la maison.
Belles prestations :
- carrelage 45*45
- menuiserie encastrer à la maçonnerie
- volet roulant électrique somfy
- système de chauffage très économique
Pour une étude de construction, merci de prendre rdv avec Mme Vaudry Angélique 06.48.23.57.76
Mentions légales
Terrain proposé par un partenaire foncier selon disponibilités et autorisation de publicité au prix de 88 000 €. Hors droit d'enregistrement et frais de notaire. Terrain + Maison proposés au prix de 238 000 € (Hors branchements et raccordements, papiers peints, peintures, revêtement de sol dans les chambres. Tarif modifiable sans préavis). Etiquette énergie : A. Différents modèles disponibles pour ce terrain. Assurances et garanties du constructeur (RC professionnelle, décennale, dommage ouvrage, garantie de remboursement de l'acompte, livraison à prix et délai convenu) : https://www.maisons-france-confort.fr/mentions-legales/. HEXAOM Services est enregistré auprès de l'ORIAS en tant que Courtier en financement, Niveau 1, sous le numéro 14001345.Agence Maisons France Confort de Lisieux (14100)
- Téléphone :
- 02 31 62 91 30
- Adressse :
- 41 boulevard Jeanne d'Arc
14100 Lisieux, France
