Maison neuve à
Canet
(34800) Référence :
LR2463045_2
Prix du projet : Maison avec Terrain
prix 379 000 €
- 5 pièces
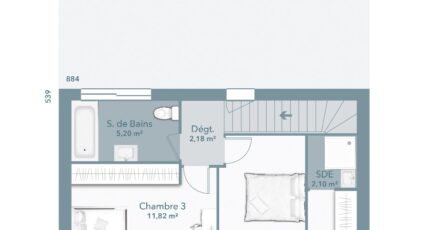
- 3 chambres
- Surface maison 92 m2
Canet : maison F5 (92 m²) à vendre
IDÉALEMENT SITUÉE - MAISON 5 PIÈCES NEUVE
À vendre : à 10 minutes de Clermont-L'Hérault, et 15 minutes de Gignac, idéalement située dans Canet (34800), nous sommes ravis de vous proposer cette maison de 5 pièces de 92 m² sur 800 m² de terrain. Son intérieur se divise en trois chambres, une cuisine et trois salles de bains.
Cette maison comporte 2 niveaux. Elle est neuve.
Cette maison se trouve dans un quartier attractif. Il y a l'École Maternelle les Canaillous et l'École Élémentaire les Oliviers à moins de 10 minutes à pied et une crèche. Les autoroutes A75 et A750 sont accessibles à moins de 6 km. On trouve un tennis, deux commerces, une boucherie-charcuterie et deux épiceries à proximité du bien.
Elle est proposée à l'achat pour 379 000 €.
Contactez Lionel ROMERA (06-30-39-77-79) pour tout renseignement sur la maison ou sur les modalités de vente.
Annonce proposée par un Agent Commercial Partenaire.
Mentions légales
Terrain proposé par un partenaire foncier selon disponibilités et autorisation de publicité au prix de 159 000 €. Hors droit d'enregistrement et frais de notaire. Terrain + Maison proposés au prix de 379 000 € (Hors branchements et raccordements, papiers peints, peintures, revêtement de sol dans les chambres. Tarif modifiable sans préavis). Etiquette énergie : A. Différents modèles disponibles pour ce terrain. Assurances et garanties du constructeur (RC professionnelle, décennale, dommage ouvrage, garantie de remboursement de l'acompte, livraison à prix et délai convenu) : https://www.maisons-france-confort.fr/mentions-legales/. HEXAOM Services est enregistré auprès de l'ORIAS en tant que Courtier en financement, Niveau 1, sous le numéro 14001345.Agence Maisons France Confort de Montpellier (34000)
- Téléphone :
- 04 67 64 85 11
- Adressse :
- 48, impasse Louis Ferdinand Herold
34000 Montpellier, France
