Maison neuve à
Cannes-Écluse
(77130) Référence :
SH2443115_2
Prix du projet : Maison avec Terrain
prix 274 148 €
- 5 pièces
- 4 chambres
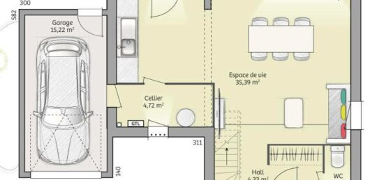
- Surface maison 98 m2
Maison T5 (98 m²) en vente à Cannes-Écluse
MAISON 5 PIÈCES NEUVE
À vendre : à côté de la gare de Montereau (Paris à 60 min par le Transilien R), nous vous proposons cette maison de 5 pièces de 98 m² et de 577 m² de terrain à Cannes-Écluse (77130). Son intérieur offre quatre chambres, une cuisine et une salle de bains.
Cette maison possède 2 niveaux. Elle est neuve.
Il y a l'École Élémentaire les Tournesols et l'École Maternelle les Jonquilles à moins de 10 minutes à pied. Niveau transports, on trouve trois gares (Montereau, La Grande-Paroisse et Villeneuve-la-Guyard) à moins de 10 minutes en voiture. Il y a deux tennis, une boulangerie, un supermarché et un commerce à proximité de la maison.
Elle est proposée à l'achat pour 274 148 €.
Contactez Stéphan HOURMANT (tél : 07-86-01-34-48) pour toute information sur cette maison ou sur les modalités de vente.
Annonce proposée par un Agent Commercial Partenaire.
Mentions légales
Terrain proposé par un partenaire foncier selon disponibilités et autorisation de publicité au prix de 85 000 €. Hors droit d'enregistrement et frais de notaire. Terrain + Maison proposés au prix de 274 148 € (Hors branchements et raccordements, papiers peints, peintures, revêtement de sol dans les chambres. Tarif modifiable sans préavis). Etiquette énergie : A. Différents modèles disponibles pour ce terrain. Assurances et garanties du constructeur (RC professionnelle, décennale, dommage ouvrage, garantie de remboursement de l'acompte, livraison à prix et délai convenu) : https://www.maisons-france-confort.fr/mentions-legales/. HEXAOM Services est enregistré auprès de l'ORIAS en tant que Courtier en financement, Niveau 1, sous le numéro 14001345.Agence Maisons France Confort de Nemours (77140)
- Téléphone :
- 01 64 28 58 32
- Adressse :
- 16 Avenue Carnot
77140 Nemours, France
