Maison neuve à
Caours
(80132) Référence :
CC2432158_2
Prix du projet : Maison avec Terrain
prix 260 214 €
- 6 pièces
- 4 chambres
- Surface maison 115 m2
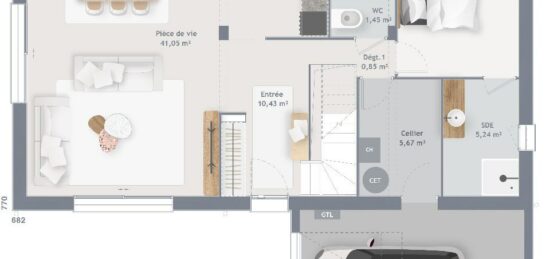
VENTE d'une maison de 6 pièces (115 m²) à Caours
IDÉALEMENT SITUÉE - MAISON 6 PIÈCES NEUVE
À vendre : Maisons Les Naturelles Abbeville vous présente, idéalement située dans Caours (80132), cette maison de 6 pièces de 115 m² et de 1 432 m² de terrain. Son intérieur se divise en quatre chambres, une cuisine et deux salles de bains.
Il s'agit d'une maison de 2 niveaux. Elle est neuve.
La maison est située dans un secteur prisé. On y trouve une école primaire. Niveau transports en commun, on trouve les gares Abbeville et Pont-Remy à moins de 10 minutes en voiture. Les autoroutes A16 et A28 sont accessibles à moins de 6 km. Il y a un tennis et un commerce à proximité.
Elle est proposée à l'achat pour 260 013 €.
Contactez Camille CISSEVILLE (06-86-73-58-15) pour plus de renseignements sur la maison ou sur les modalités de vente. Maisons Les Naturelles Abbeville vous accompagne dans tous vos projets immobiliers et à toutes les étapes de l'achat.
Mentions légales
Terrain proposé par un partenaire foncier selon disponibilités et autorisation de publicité au prix de 35 000 €. Hors droit d'enregistrement et frais de notaire. Terrain + Maison proposés au prix de 260 214 € (Hors branchements et raccordements, papiers peints, peintures, revêtement de sol dans les chambres. Tarif modifiable sans préavis). Etiquette énergie : A. Différents modèles disponibles pour ce terrain. Assurances et garanties du constructeur (RC professionnelle, décennale, dommage ouvrage, garantie de remboursement de l'acompte, livraison à prix et délai convenu) : https://www.maisonslesnaturelles.fr/informations-legales/.Agence Maisons Les Naturelles de Abbeville (80100)
- Téléphone :
- 03 22 19 22 55
- Adressse :
- 2 rue Lesueur
80100 Abbeville, France
