Maison neuve à
Berriac
(11090) Référence :
SE2492566_17
Prix du projet : Maison avec Terrain
prix 420 707 €
- 6 pièces
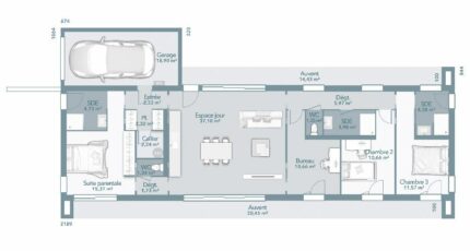
- 4 chambres
- Surface maison 115 m2
VENTE : maison de 6 pièces (115 m²) à Carcassonne
IDÉALEMENT SITUÉE - MAISON 6 PIÈCES NEUVE
Nous vous présentons cette maison de 6 pièces de plain-pied de 115 m² et de 786 m² de terrain idéalement située dans Carcassonne (11090).
Son intérieur propose quatre chambres, une cuisine et deux salles de bains. La maison est neuve.
La propriété se situe dans un secteur prisé. On trouve des établissements scolaires (de la maternelle au lycée) à moins de 10 minutes en voiture, tout comme quatre crèches à moins de 10 minutes à pied. Côté transports en commun, il y a deux gares (Carcassonne et Couffoulens-Leuc) à moins de 10 minutes en voiture. L'autoroute A61 est accessible à 2 km. On trouve des tennis, des bassins de natation, trois bibliothèques, des commerces, des poissonneries, quatre supérettes, des boucheries-charcuteries et des bureaux de poste dans les environs.
Son prix de vente est de 420 707 €.
Contactez Stéphane EMBID (06-65-50-56-62) pour tout renseignement sur la maison, sur les démarches à suivre ou sur les modalités de vente.
Mentions légales
Terrain proposé par un partenaire foncier selon disponibilités et autorisation de publicité au prix de 78 500 €. Hors droit d'enregistrement et frais de notaire. Terrain + Maison proposés au prix de 420 707 € (Hors branchements et raccordements, papiers peints, peintures, revêtement de sol dans les chambres. Tarif modifiable sans préavis). Etiquette énergie : A. Différents modèles disponibles pour ce terrain. Assurances et garanties du constructeur (RC professionnelle, décennale, dommage ouvrage, garantie de remboursement de l'acompte, livraison à prix et délai convenu) : https://www.maisons-france-confort.fr/mentions-legales/. HEXAOM Services est enregistré auprès de l'ORIAS en tant que Courtier en financement, Niveau 1, sous le numéro 14001345.Agence Maisons France Confort de Carcassonne (11000)
- Téléphone :
- 04 68 47 39 25
- Adressse :
- 73 bis avenue du Général Leclerc
11000 Carcassonne, France
