Maison neuve à
Carignan-de-Bordeaux (33360) Référence : SM2283374_1

Prix du projet : Maison avec Terrain

prix 699 000 €

  • 5 pièces
  • 4 chambres
  • Surface maison 150 m2

Emplacement rare, à deux pas du centre-ville

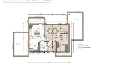
Projet de construction d'une maison contemporaine de 150 m² sur un terrain de plus de 1000 m² idéalement situé sur la commune de Carignan de Bordeaux comprenant;

Quatre chambres dont une suite parentale en rez-de-chaussée

Un bureau

Un carport de 20 m²

Un plafond rampant dans la pièce de vie apportant volume et luminosité

Cadre calme et proche des commodités à pied

Pour plus de renseignements, contacter Sébastien Monacelli au O7 77 86 55 46 Agence SO'9 Habitat Le Bouscat marque du Groupe HDV

Mentions légales

Terrain proposé par un partenaire foncier selon disponibilité dans le cadre d’un projet de construction avec So'9 Habitat. Les descriptions, photographies, surfaces et prix illustrant l’annonce sont fournies à titre indicatif et ne sont pas contractuels. Non soumis au DPE. Différents modèles disponibles.

Contactez l'agence de Le Bouscat

06 73 00 14 32

    * Champs obligatoires

    Vos informations sont traitées par HEXAOM et transmises à un conseiller commercial qui vous contactera afin de répondre à votre demande. Les plans et images présentés sur notre site sont la propriété d’HEXAOM et ne peuvent pas être reproduits sans son accord. Pour retrouver notre politique de protection des données personnelles et exercer vos droits conformément à la « loi informatique et liberté » cliquez-ici.