Maison neuve à
Cartelègue (33390) Référence : IN2388349_4

Prix du projet : Maison avec Terrain

prix 307 000 €

  • 5 pièces
  • 4 chambres
  • Surface maison 130 m2

Contacter Isabelle NADAU - 07 83 16 38 49 - EXCLUSIVITÉ MCA BLAYE
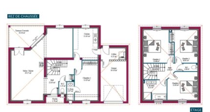
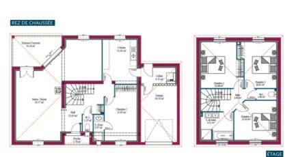
Cartelègue : Maison de 5 pièces de 130 m² à vendre
À Cartelègue (33390), Maisons de la Côte Atlantique Blaye vous propose cette maison de 130 m², répartie sur 2 niveaux et implantée sur un terrain de 1 000 m².
Elle se compose de quatre chambres, d'une cuisine et d'une salle de bains.
L'École Primaire Claude Monet se situe à moins de 10 minutes à pied.
L'autoroute A10 est accessible à seulement 9 km.
À proximité, vous trouverez également un court de tennis et une bibliothèque.
Cette maison est proposée au prix de 307 000 € - SANS FRAIS ANNEXES.
Pour tout renseignement sur ce bien ou sur les démarches à suivre, contactez Isabelle NADAU au 07 83 16 38 49.

Mentions légales

Idée de réalisation en modèle prêt à décorer sur l'un de nos terrains partenaires, sous réserve de disponibilités. Voir détails en agence.

Contactez l'agence de Blaye

05 57 32 87 63

    * Champs obligatoires

    Vos informations sont traitées par HEXAOM et transmises à un conseiller commercial qui vous contactera afin de répondre à votre demande. Les plans et images présentés sur notre site sont la propriété d’HEXAOM et ne peuvent pas être reproduits sans son accord. Pour retrouver notre politique de protection des données personnelles et exercer vos droits conformément à la « loi informatique et liberté » cliquez-ici.