Maison neuve à
Cascastel-des-Corbières (11360) Référence : FM2424818_2

Prix du projet : Maison avec Terrain

prix 167 500 €

  • 4 pièces
  • 3 chambres
  • Surface maison 85 m2

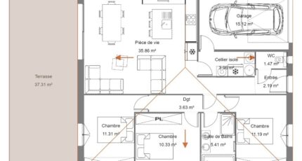
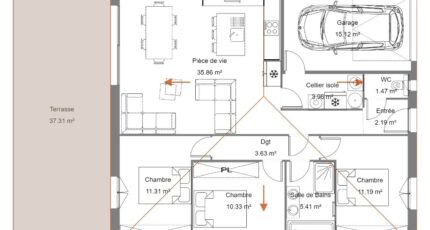
VENTE d'une maison de 4 pièces (85 m²) à Cascastel-des-Corbières
IDÉALEMENT SITUÉE - MAISON 4 PIÈCES NEUVE
En vente : à 32 km de la mer Méditerranée et à 30 km de Narbonne, laissez vous charmer par, idéalement située dans Cascastel-des-Corbières (11360), cette maison de 4 pièces de 85 m² et de 530 m² de terrain avec vue dégagée. Conçue de plain-pied, elle inclut trois chambres, une cuisine et une salle de bains.
Cette maison est de plain-pied. Elle est neuve.
Cette maison se trouve dans un quartier convoité. Une école primaire y est implantée. L'autoroute A9 est accessible à 17 km.
Son prix de vente est de 167 500 €.
Prenez contact avec Frédéric MAGERE (tél : 06-40-94-56-74) pour toute information sur la maison, sur les modalités de vente ou sur les démarches à suivre. Donnez vie à vos projets immobiliers avec Maisons France Confort Carcassonne.

Mentions légales

Terrain proposé par un partenaire foncier selon disponibilités et autorisation de publicité au prix de 39 000 €. Hors droit d'enregistrement et frais de notaire. Terrain + Maison proposés au prix de 167 500 € (Hors branchements et raccordements, papiers peints, peintures, revêtement de sol dans les chambres. Tarif modifiable sans préavis). Etiquette énergie : A. Différents modèles disponibles pour ce terrain. Assurances et garanties du constructeur (RC professionnelle, décennale, dommage ouvrage, garantie de remboursement de l'acompte, livraison à prix et délai convenu) : https://www.maisons-france-confort.fr/mentions-legales/. HEXAOM Services est enregistré auprès de l'ORIAS en tant que Courtier en financement, Niveau 1, sous le numéro 14001345.

Contactez l'agence de Carcassonne

04 68 47 39 25

    * Champs obligatoires

    Vos informations sont traitées par HEXAOM et transmises à un conseiller commercial qui vous contactera afin de répondre à votre demande. Les plans et images présentés sur notre site sont la propriété d’HEXAOM et ne peuvent pas être reproduits sans son accord. Pour retrouver notre politique de protection des données personnelles et exercer vos droits conformément à la « loi informatique et liberté » cliquez-ici.