Maison neuve à
Cascastel-des-Corbières
(11360) Référence :
FM2497206_1
Prix du projet : Maison avec Terrain
prix 167 500 €
- 4 pièces
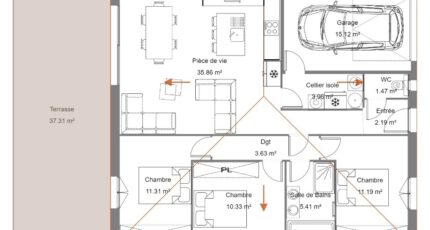
- 3 chambres
- Surface maison 85 m2
VENTE d'une maison de 4 pièces (85 m²) à Cascastel-des-Corbières
IDÉALEMENT SITUÉE - MAISON 4 PIÈCES NEUVE
En vente : à 32 km de la mer Méditerranée et à 30 km de Narbonne, laissez vous charmer par, idéalement située dans Cascastel-des-Corbières (11360), cette maison de 4 pièces de 85 m² et de 530 m² de terrain avec vue dégagée. Conçue de plain-pied, elle inclut trois chambres, une cuisine et une salle de bains.
Cette maison est de plain-pied. Elle est neuve.
Cette maison se trouve dans un quartier convoité. Une école primaire y est implantée. L'autoroute A9 est accessible à 17 km.
Son prix de vente est de 167 500 €.
Prenez contact avec Frédéric MAGERE (tél : 06-40-94-56-74) pour toute information sur la maison, sur les modalités de vente ou sur les démarches à suivre. Donnez vie à vos projets immobiliers avec Maisons France Confort Carcassonne.
Mentions légales
Terrain proposé par un partenaire foncier selon disponibilités et autorisation de publicité au prix de 39 000 €. Hors droit d'enregistrement et frais de notaire. Terrain + Maison proposés au prix de 167 500 € (Hors branchements et raccordements, papiers peints, peintures, revêtement de sol dans les chambres. Tarif modifiable sans préavis). Etiquette énergie : A. Différents modèles disponibles pour ce terrain. Assurances et garanties du constructeur (RC professionnelle, décennale, dommage ouvrage, garantie de remboursement de l'acompte, livraison à prix et délai convenu) : https://www.maisons-france-confort.fr/mentions-legales/. HEXAOM Services est enregistré auprès de l'ORIAS en tant que Courtier en financement, Niveau 1, sous le numéro 14001345.Agence Maisons France Confort de Carcassonne (11000)
- Téléphone :
- 04 68 47 39 25
- Adressse :
- 73 bis avenue du Général Leclerc
11000 Carcassonne, France
