Maison neuve à
Casseuil
(33190) Référence :
PA964CASSEUIL_1
Prix du projet : Maison avec Terrain
prix 295 450 €
- 7 pièces
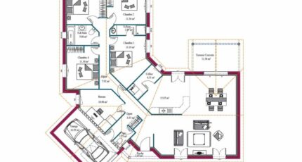
- 4 chambres
- Surface maison 146 m2
Maison T7 (146 m²) à vendre à Casseuil
EMPLACEMENT PRIVILÉGIÉ - MAISON 7 PIÈCES NEUVE
En vente : votre agence Maisons de la Côte Atlantique Portets est heureuse de vous présenter cette maison de 7 pièces de plain-pied de 146 m² bénéficiant d'un emplacement d'exception dans Casseuil (33190). Conçue de plain-pied, elle comporte quatre chambres, une cuisine et deux salles de bains.
Le terrain de la propriété s'étend sur 964 m².
Cette maison est neuve.
Cette maison se situe dans un quartier convoité. Niveau transports en commun, il y a cinq gares à moins de 10 minutes en voiture. On trouve un accès à l'autoroute A62 à 9 km. On trouve deux commerces à quelques minutes à peine.
Son prix de vente est de 295 450 €.
Prenez contact avec Pamela AUDINEAU pour toute question sur la maison et sur les démarches à suivre. Maisons de la Côte Atlantique Portets vous accompagne dans tous vos projets immobiliers et dans toutes vos démarches.
Mentions légales
Idée de réalisation en modèle prêt à décorer sur l'un de nos terrains partenaires, sous réserve de disponibilités. Voir détails en agence.Agence Maisons de la Côte Atlantique de Portets (33640)
- Téléphone :
- 05 56 32 87 56
- Adressse :
- 2 bis A, rue du Mirail
33640 Portets, France
