Maison neuve à
Casson
(44390) Référence :
BLM2474547_4
Prix du projet : Maison avec Terrain
prix 366 200 €
- 4 pièces
- 4 chambres
- Surface maison 120 m2
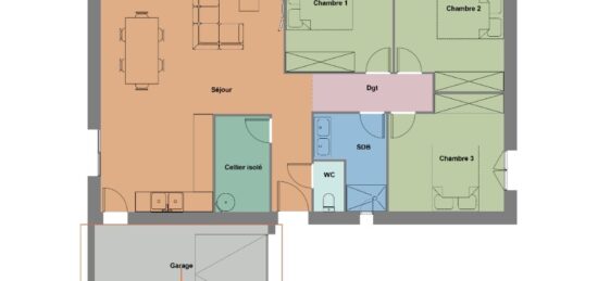
VENTE : maison T4 (120 m²) à Casson
IDÉALEMENT SITUÉE - MAISON 4 PIÈCES NEUVE
À vendre à quelques kilomètres de Nantes, nous vous proposons cette maison de 4 pièces de 120 m² et de 270 m² de terrain idéalement située dans Casson (44390). Elle se divise en quatre chambres, une cuisine et deux salles de bains.
Cette maison compte 2 niveaux. Elle est neuve.
La maison se situe dans un quartier attractif. On trouve l'École Primaire Privée Sainte Anne et l'École Primaire Publique Montgolfier à moins de 10 minutes à pied. Niveau transports, il y a les gares Sucé-sur-Erdre, Nort-sur-Erdre et La Chapelle-Aulnay à moins de 10 minutes en voiture. On trouve un accès à la nationale N137 à 7 km. On trouve une bibliothèque dans les environs.
Son prix de vente est de 366 200 €.
N'hésitez pas à prendre contact avec notre agence pour tout renseignement sur la propriété, sur les démarches à suivre ou sur les modalités de vente. Maisons de l'Avenir Orvault est là pour vous accompagner dans tous vos projets immobiliers.
Mentions légales
Terrain proposé par un partenaire foncier selon disponibilités et autorisation de publicité au prix de 90 000 €. Hors droit d'enregistrement et frais de notaire. Terrain + Maison proposés au prix de 366 200 € (Hors branchements et raccordements, papiers peints, peintures, revêtement de sol dans les chambres. Tarif modifiable sans préavis). Etiquette énergie : A. Différents modèles disponibles pour ce terrain. Assurances et garanties du constructeur (RC professionnelle, décennale, dommage ouvrage, garantie de remboursement de l'acompte, livraison à prix et délai convenu) : https://www.maisonsdelavenir.com/mentions-legales/.Agence Maisons de l'Avenir de Orvault (44700)
- Téléphone :
- 02 51 83 13 00
- Adressse :
- 17, rue Jules Verne
44700 Orvault, France