Maison neuve à
Castanet-Tolosan
(31320) Référence :
PC2261722_3
Prix du projet : Maison avec Terrain
prix 428 769 €
- 6 pièces
- 5 chambres
- Surface maison 125 m2
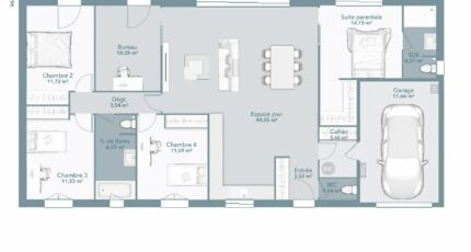
Projet Terrain + Maison OPTIMA 125 à Mervilla
Le terrain : Vous cherchez l'équilibre parfait entre confort, espace et vie pratique ? Votre projet vous attend à Mervilla, sur un magnifique terrain de 1326 m² limitrophe de Castanet-Tolosan, dans un environnement calme et verdoyant.
Maison France Confort vous propose un projet global terrain + maison sur cette parcelle, prête à bâtir. Sur cet emplacement privilégié, construisez votre maison de plain-pied de 5 chambres, conçue pour votre famille.
Votre future maison se compose de :
Une pièce à vivre de plus de 45 m² inondée de lumière.
Une suite parentale avec dressing et salle d'eau d'un côté.
Un espace enfants avec 4 chambres et une salle de bain dédiée de l'autre.
Un cellier, un garage et 3 WC complètent ce plan ingénieux.
Grâce à la norme RE2020, votre maison sera un modèle d'économies d'énergie et de confort thermique.
Votre vision, notre réalisation ! Tous nos projets sont personnalisables. Nous élaborons la maison qui correspond parfaitement à vos souhaits et à votre budget.
Avantage financier : Les frais de notaire sont réduits, car ils s'appliquent uniquement sur le terrain.
Infos sur RDV Agence de Saint-Orens : 05.61.73.11.84
Annonce proposée par un Agent Commercial Partenaire.
Mentions légales
Terrain proposé par un partenaire foncier selon disponibilités et autorisation de publicité au prix de 215 000 €. Hors droit d'enregistrement et frais de notaire. Maison proposée, avec un contrat de construction de maison individuelle, dans le cadre de la loi du 19/12/1990, au prix de 213 769 € (Hors branchements et raccordements, papiers peints, peintures, revêtement de sol dans les chambres, qui sont chiffrés dans les travaux qui restent à charge du client. Tarif modifiable sans préavis). Étiquette énergie : A. Différents modèles disponibles pour ce terrain. Assurances et garanties du constructeur comprises (RC professionnelle, décennale, dommage ouvrage).Agence Maisons France Confort de Saint-Orens-de-Gameville (31650)
- Téléphone :
- 05 61 73 11 84
- Adressse :
- 1 rue de la plaine
31650 Saint-Orens-de-Gameville, France
