Maison neuve à
Castelculier (47240) Référence : HC2497340_5

Prix du projet : Maison avec Terrain

prix 395 000 €

  • 7 pièces
  • 4 chambres
  • Surface maison 146 m2

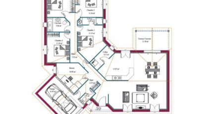
VENTE : maison 6 pièces 145m²
Maison T6 dans un secteur recherché de Castelculier
Idéalement située. A proximité des commerces, écoles, médecins, lignes de bus.

▪️ Modèle Plaisir-Sud :
- 5 chambres avec placards
- Grande suite parentale
- Salon/séjour lumineux
- Cuisine ouverte avec cellier
- Garage
- Terrasse couverte
- Modèle entièrement personnalisable !
- DPE : A (norme RE2020)
- CCMI et garantie de livraison

Chiffrage projet réalisé sur la base d'une maison prêt à décorer, hors frais de notaire.
Pour toute information sur la maison, sur les modalités de vente ou sur les démarches à suivre, contactez Hugo Chambon au numéro indiqué sur la photo.

Mentions légales

Idée de réalisation en modèle prêt à décorer sur l'un de nos terrains partenaires, sous réserve de disponibilités. Voir détails en agence.

Contactez l'agence de Boé

05 64 25 07 47

    * Champs obligatoires

    Vos informations sont traitées par HEXAOM et transmises à un conseiller commercial qui vous contactera afin de répondre à votre demande. Les plans et images présentés sur notre site sont la propriété d’HEXAOM et ne peuvent pas être reproduits sans son accord. Pour retrouver notre politique de protection des données personnelles et exercer vos droits conformément à la « loi informatique et liberté » cliquez-ici.