Maison neuve à
Castelnau-de-Montmiral
(81140) Référence :
MB2489494_6
Prix du projet : Maison avec Terrain
prix 449 000 €
- 6 pièces
- 5 chambres
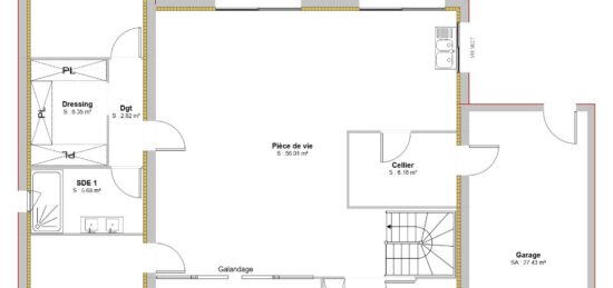
- Surface maison 186 m2
VENTE d'une maison T6 (186 m²) à Castelnau-de-Montmiral
PROCHE D'ALBI - MAISON 6 PIÈCES NEUVE
En vente : à quelques kilomètres d'Albi, à Castelnau-de-Montmiral (81140), Maisons France Confort Albi vous propose cette maison de 6 pièces de 186 m² et de 768 m² de terrain.
Cette maison compte 2 niveaux. Son intérieur dispose de cinq chambres, d'une cuisine et de deux salles de bains. La maison est neuve.
Elle est à vendre pour la somme de 449 000 €.
N'hésitez pas à prendre contact avec votre agence Maisons France Confort Albi au 05.63.43.56.40 pour toute question sur la maison.
Annonce proposée par un Agent Commercial Partenaire.
Mentions légales
Terrain proposé par un partenaire foncier selon disponibilités et autorisation de publicité au prix de 54 000 €. Hors droit d'enregistrement et frais de notaire. Terrain + Maison proposés au prix de 449 000 € (Hors branchements et raccordements, papiers peints, peintures, revêtement de sol dans les chambres. Tarif modifiable sans préavis). Etiquette énergie : A. Différents modèles disponibles pour ce terrain. Assurances et garanties du constructeur (RC professionnelle, décennale, dommage ouvrage, garantie de remboursement de l'acompte, livraison à prix et délai convenu) : https://www.maisons-france-confort.fr/mentions-legales/. HEXAOM Services est enregistré auprès de l'ORIAS en tant que Courtier en financement, Niveau 1, sous le numéro 14001345.Agence Maisons France Confort de Albi (81000)
- Téléphone :
- 05 63 43 56 40
- Adressse :
- 187 avenue Colonel Teyssier
81000 Albi, France
