Maison neuve à
Castelnau-d'Estrétefonds
(31620) Référence :
AL2462411_1
Prix du projet : Maison avec Terrain
prix 273 400 €
- 6 pièces
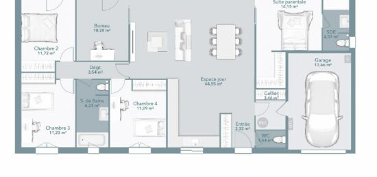
- 4 chambres
- Surface maison 115 m2
"Votre agence Maisons France Confort d'Aucamville vous propose ce beau projet maison + terrain non loin de CASTELNAU D'ESTRETEFONDS.
Optez pour le charme de la maison traditionnelle du sud de la France avec notre modèle Bastide 95+20 en RE2020. Avec ses volumes et son architecture mêlant élégance et tradition, cette maison fera le bonheur de votre famille. Au rez-de-chaussée, elle propose une pièce de vie lumineuse et agréable de 42 m² avec cuisine ouverte sur la salle à manger et le salon, et un cellier attenant à la cuisine et au garage. À l'étage, le pallier s'ouvre sur 2 chambres, une salle de bains et des WC mais aussi sur une suite parentale en option avec dressing et salle d'eau. Autre bel avantage de cette maison, au rez-de-chaussée, on peut ajouter un espace indépendant dédié aux parents en option avec une suite parentale, un dressing, des WC et une salle d'eau, le tout dans 20 m². Cette maison vous garantit le charme de l'authentique, les fonctionnalités du moderne et le bien-être des habitants !
Prix: 273 400€ HF
Pour toutes informations, contactez l'agence MAISONS FRANCE CONFORT d'Aucamville au 05.34.43.84.38"
Annonce proposée par un Agent Commercial Partenaire.
Mentions légales
Terrain proposé par un partenaire foncier selon disponibilités et autorisation de publicité au prix de 89 000 €. Hors droit d'enregistrement et frais de notaire. Terrain + Maison proposés au prix de 273 400 € (Hors branchements et raccordements, papiers peints, peintures, revêtement de sol dans les chambres. Tarif modifiable sans préavis). Etiquette énergie : A. Différents modèles disponibles pour ce terrain. Assurances et garanties du constructeur (RC professionnelle, décennale, dommage ouvrage, garantie de remboursement de l'acompte, livraison à prix et délai convenu) : https://www.maisons-france-confort.fr/mentions-legales/. HEXAOM Services est enregistré auprès de l'ORIAS en tant que Courtier en financement, Niveau 1, sous le numéro 14001345.Agence Maisons France Confort de Aucamville (31140)
- Téléphone :
- 05 34 43 84 38
- Adressse :
- 17 chemin Bellegarrigues
31140 Aucamville, France
