Maison neuve à
Langon
(33210) Référence :
SB2296929_1
Prix du projet : Maison avec Terrain
prix 401 921 €
- 5 pièces
- 3 chambres
- Surface maison 130 m2
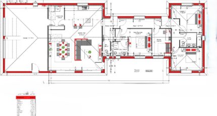
Votre projet de construction- Maison contemporaine 130 m² + garage DE 47m².
Réalisez votre projet de construction clé en main sur ce magnifique terrain de 1900 m² à la sortie de Castets et Castillon, avec vue imprenable et cadre un paisible.
Le projet comprend tous les frais suivants : viabilisation, VRD, notaire et construction.
Maison proposée :
-Surface : 130 m²
-Style contemporain de charme, forme en H pour séparer les espaces jour et nuit
-Double garage 47m²
-3 chambres, dont suite parentale avec dressing et salle d'eau
-Bureau supplémentaire
-Très beaux volumes et lumière naturelle optimisée
-Dernières normes d'isolations
-Entièrement personnalisable selon vos envies
Ce projet est réalisé avec Sophia Barrere - Alpha Constructions Langon, pour vous garantir un suivi professionnel et un résultat clé en main.
Mentions légales
Terrain proposé par un partenaire foncier selon disponibilité dans le cadre d’un projet de construction avec Alpha Constructions. Les descriptions, photographies, surfaces et prix illustrant l’annonce sont fournies à titre indicatif et ne sont pas contractuels. Non soumis au DPE. Différents modèles disponibles.Agence Alpha Constructions de Langon (33210)
- Téléphone :
- 05 57 98 50 94
- Adressse :
- 84 Cours des fossées
33210 Langon, France