Maison neuve à
Castres-Gironde (33640) Référence : DC2483192_1

Prix du projet : Maison avec Terrain

prix 287 690 €

  • 4 pièces
  • 3 chambres
  • Surface maison 100 m2

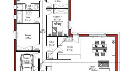
VENTE : maison de 4 pièces (100 m²) à Castres-Gironde
IDÉALEMENT SITUÉE - MAISON 4 PIÈCES NEUVE
À 45 km de la côte atlantique et à deux pas de Bordeaux, votre agence Batisoft Bordeaux est heureuse de vous proposer cette maison de 4 pièces de plain-pied de 100 m² et de 475 m² de terrain en vente, idéalement située dans Castres-Gironde (33640).
Son intérieur dispose de trois chambres, d'une cuisine et d'une salle de bains. La maison est neuve.
Cette maison se situe dans un quartier prisé. Il y a l'École Primaire Lions de Guyenne à moins de 10 minutes à pied et une crèche. Niveau transports, on trouve la gare Beautiran à proximité. Il y a un accès à l'autoroute A62 à 4 km. Il y a un tennis, quatre commerces, deux boulangeries, un supermarché, un bureau de poste et une boucherie-charcuterie dans les environs.
Elle est à vendre pour la somme de 287 690 €.
Contactez notre agence (CAZAUBON David : O6-11-78-42-56) pour toute information sur la maison ou sur les modalités de vente. Batisoft Bordeaux est là pour vous accompagner dans toutes vos démarches.

Mentions légales

Idée de réalisation en modèle prêt à décorer sur l’un de nos terrains partenaires, sous réserve de disponibilités. Voir détails en agence.

Contactez l'agence de Bordeaux

05 35 37 13 70

    * Champs obligatoires

    Vos informations sont traitées par HEXAOM et transmises à un conseiller commercial qui vous contactera afin de répondre à votre demande. Les plans et images présentés sur notre site sont la propriété d’HEXAOM et ne peuvent pas être reproduits sans son accord. Pour retrouver notre politique de protection des données personnelles et exercer vos droits conformément à la « loi informatique et liberté » cliquez-ici.