Maison neuve à
Castres-Gironde
(33640) Référence :
DC2483192_2
Prix du projet : Maison avec Terrain
prix 287 690 €
- 4 pièces
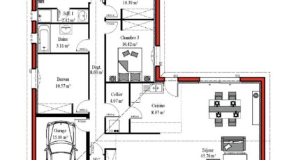
- 3 chambres
- Surface maison 100 m2
VENTE : maison de 4 pièces (100 m²) à Castres-Gironde
IDÉALEMENT SITUÉE - MAISON 4 PIÈCES NEUVE
À 45 km de la côte atlantique et à deux pas de Bordeaux, votre agence Batisoft Bordeaux est heureuse de vous proposer cette maison de 4 pièces de plain-pied de 100 m² et de 475 m² de terrain en vente, idéalement située dans Castres-Gironde (33640).
Son intérieur dispose de trois chambres, d'une cuisine et d'une salle de bains. La maison est neuve.
Cette maison se situe dans un quartier prisé. Il y a l'École Primaire Lions de Guyenne à moins de 10 minutes à pied et une crèche. Niveau transports, on trouve la gare Beautiran à proximité. Il y a un accès à l'autoroute A62 à 4 km. Il y a un tennis, quatre commerces, deux boulangeries, un supermarché, un bureau de poste et une boucherie-charcuterie dans les environs.
Elle est à vendre pour la somme de 287 690 €.
Contactez notre agence (CAZAUBON David : O6-11-78-42-56) pour toute information sur la maison ou sur les modalités de vente. Batisoft Bordeaux est là pour vous accompagner dans toutes vos démarches.
Mentions légales
Idée de réalisation en modèle prêt à décorer sur l’un de nos terrains partenaires, sous réserve de disponibilités. Voir détails en agence.Agence Batisoft de Bordeaux (33000)
- Téléphone :
- 05 35 37 13 70
- Adressse :
- Village Homexpo - Parc des expositions
33000 Bordeaux, France
