Maison neuve à
Caumont-l'Éventé
(14240) Référence :
JS2317074_5
Prix du projet : Maison avec Terrain
prix 226 700 €
- 7 pièces
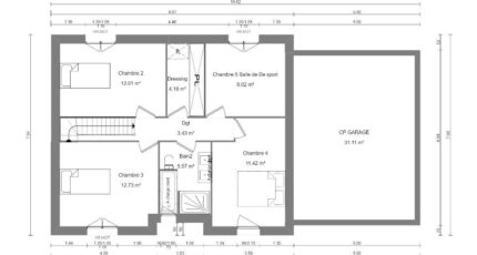
- 5 chambres
- Surface maison 120 m2
Maison de 7 pièces (120 m²) en vente à Caumont-l'Éventé
IDÉALEMENT SITUÉE - MAISON 7 PIÈCES NEUVE
En vente : située à 30 km de la Manche, nous vous proposons, idéalement située dans Caumont-l'Éventé (14240), cette maison de 7 pièces de 120 m². Elle compte cinq chambres, une cuisine et deux salles de bains.
Le terrain de cette maison est de 350 m².
Cette maison comporte 2 niveaux. Elle est neuve.
Cette maison est située dans un quartier recherché. Deux établissements scolaires sont implantés à moins de 10 minutes à pied, tout comme, comme le Collège les Sources d'Aure. L'autoroute A84 est accessible à 6 km. Il y a un tennis, une bibliothèque, trois commerces, deux boulangeries, deux supermarchés, deux boucheries-charcuteries et un bureau de poste dans les environs.
Elle est à vendre pour la somme de 226 700 €.
Prenez contact avec Emilie HUE (06-29-81-46-66) pour toute question sur le bien et sur les démarches à suivre.
Annonce proposée par un Agent Commercial Partenaire.
Mentions légales
Terrain proposé par un partenaire foncier selon disponibilités et autorisation de publicité au prix de 26 700 €. Hors droit d'enregistrement et frais de notaire. Terrain + Maison proposés au prix de 200 000 € (Hors branchements et raccordements, papiers peints, peintures, revêtement de sol dans les chambres. Tarif modifiable sans préavis). Etiquette énergie : A. Différents modèles disponibles pour ce terrain. Assurances et garanties du constructeur (RC professionnelle, décennale, dommage ouvrage, garantie de remboursement de l'acompte, livraison à prix et délai convenu) : https://www.maisons-france-confort.fr/mentions-legales/. HEXAOM Services est enregistré auprès de l'ORIAS en tant que Courtier en financement, Niveau 1, sous le numéro 14001345.Agence Maisons France Confort de Bayeux (14400)
- Téléphone :
- 02 31 51 20 91
- Adressse :
- 2, rue Saint Loup
14400 Bayeux, France
