Maison neuve à
Caumont-l'Éventé
(14240) Référence :
JS2317074_8
Prix du projet : Maison avec Terrain
prix 191 700 €
- 6 pièces
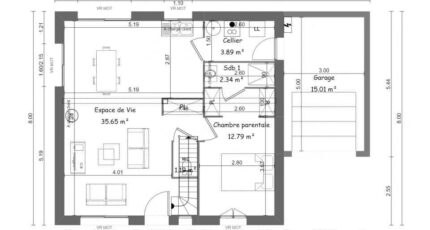
- 4 chambres
- Surface maison 110 m2
Caumont-l'Éventé : maison T6 (110 m²) à vendre
IDÉALEMENT SITUÉE - MAISON 6 PIÈCES NEUVE
En vente : à 30 km de la Manche, notre agence Maisons France Confort Bayeux est ravie de vous proposer cette maison de 6 pièces de 110 m² idéalement située dans Caumont-l'Éventé (14240).
Cette maison possède 2 niveaux. Elle propose quatre chambres, une cuisine et deux salles de bains. Cette maison est neuve.
Le terrain du bien s'étend sur 350 m².
La maison se situe dans un quartier attractif. Il y a deux établissements scolaires à moins de 10 minutes à pied et dont le Collège les Sources d'Aure. L'autoroute A84 est accessible à 6 km. On trouve un tennis, une bibliothèque, trois commerces, deux boulangeries, deux supermarchés, deux boucheries-charcuteries et un bureau de poste à proximité.
Elle est proposée à l'achat pour 191 700 €.
Contactez notre constructeur (Emilie HUE : 06-29-81-46-66) pour plus d'informations sur la maison.
Annonce proposée par un Agent Commercial Partenaire.
Mentions légales
Terrain proposé par un partenaire foncier selon disponibilités et autorisation de publicité au prix de 26 700 €. Hors droit d'enregistrement et frais de notaire. Terrain + Maison proposés au prix de 165 000 € (Hors branchements et raccordements, papiers peints, peintures, revêtement de sol dans les chambres. Tarif modifiable sans préavis). Etiquette énergie : A. Différents modèles disponibles pour ce terrain. Assurances et garanties du constructeur (RC professionnelle, décennale, dommage ouvrage, garantie de remboursement de l'acompte, livraison à prix et délai convenu) : https://www.maisons-france-confort.fr/mentions-legales/. HEXAOM Services est enregistré auprès de l'ORIAS en tant que Courtier en financement, Niveau 1, sous le numéro 14001345.Agence Maisons France Confort de Bayeux (14400)
- Téléphone :
- 02 31 51 20 91
- Adressse :
- 2, rue Saint Loup
14400 Bayeux, France
