Maison neuve à
Caumont-l'Éventé
(14240) Référence :
JS2317166_2
Prix du projet : Maison avec Terrain
prix 232 900 €
- 5 pièces
- 3 chambres
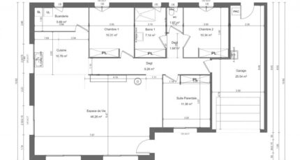
- Surface maison 110 m2
Maison T5 (110 m²) à vendre à Caumont-l'Éventé
IDÉALEMENT SITUÉE - MAISON 5 PIÈCES NEUVE
À vendre : située à 30 km de la Manche, découvrez cette maison de 5 pièces de plain-pied de 110 m² et de 500 m² de terrain, idéalement située dans Caumont-l'Éventé (14240).
Son intérieur est composé de trois chambres, d'une cuisine et d'une salle de bains. La maison est neuve.
La maison se situe dans un secteur recherché. On trouve deux établissements scolaires à moins de 10 minutes à pied et, parmi lesquels le Collège les Sources d'Aure. On trouve un accès à l'autoroute A84 à 6 km. Il y a un tennis, une bibliothèque, trois commerces, deux boulangeries, deux supermarchés, un bureau de poste et deux boucheries-charcuteries dans les environs.
Elle est proposée à l'achat pour 232 900 €.
Contactez notre agence (Emilie HUE : 06-29-81-46-66) pour obtenir de plus amples informations sur la maison ou sur les démarches à suivre. Faites de vos projets immobiliers une réalité avec Maisons France Confort Bayeux.
Annonce proposée par un Agent Commercial Partenaire.
Mentions légales
Terrain proposé par un partenaire foncier selon disponibilités et autorisation de publicité au prix de 32 900 €. Hors droit d'enregistrement et frais de notaire. Maison proposée, avec un contrat de construction de maison individuelle, dans le cadre de la loi du 19/12/1990, au prix de 200 000 € (Hors branchements et raccordements, papiers peints, peintures, revêtement de sol dans les chambres, qui sont chiffrés dans les travaux qui restent à charge du client. Tarif modifiable sans préavis). Étiquette énergie : A. Différents modèles disponibles pour ce terrain. Assurances et garanties du constructeur comprises (RC professionnelle, décennale, dommage ouvrage).Agence Maisons France Confort de Bayeux (14400)
- Téléphone :
- 02 31 51 20 91
- Adressse :
- 2, rue Saint Loup
14400 Bayeux, France
