Maison neuve à
Caumont-l'Éventé
(14240) Référence :
JS2317166_4
Prix du projet : Maison avec Terrain
prix 187 900 €
- 5 pièces
- 3 chambres
- Surface maison 95 m2
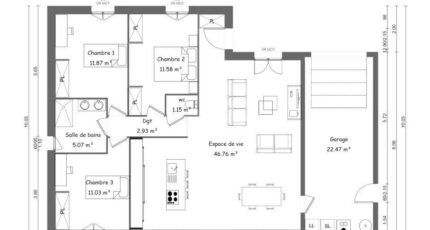
Maison de 5 pièces (95 m²) en vente à Caumont-l'Éventé
IDÉALEMENT SITUÉE - MAISON 5 PIÈCES NEUVE
À vendre : située à 30 km de la Manche, Maisons France Confort Bayeux vous présente cette maison de 5 pièces de plain-pied de 95 m² et de 500 m² de terrain idéalement située dans Caumont-l'Éventé (14240).
Conçue de plain-pied, elle propose trois chambres, une cuisine et deux salles de bains. Cette maison est neuve.
Cette maison se trouve dans un quartier convoité. Deux établissements scolaires sont implantés à moins de 10 minutes à pied, tout comme, comme le Collège les Sources d'Aure. On trouve un accès à l'autoroute A84 à 6 km. On trouve un tennis, une bibliothèque, trois commerces, deux boulangeries, deux supermarchés, un bureau de poste et deux boucheries-charcuteries à proximité.
Elle est à vendre pour la somme de 187 900 €.
Contactez notre agence (Emilie HUE : 06-29-81-46-66) pour toute information sur la propriété et sur les démarches à suivre. Maisons France Confort Bayeux est là pour vous accompagner dans tous vos projets immobiliers.
Annonce proposée par un Agent Commercial Partenaire.
Mentions légales
Terrain proposé par un partenaire foncier selon disponibilités et autorisation de publicité au prix de 32 900 €. Hors droit d'enregistrement et frais de notaire. Maison proposée, avec un contrat de construction de maison individuelle, dans le cadre de la loi du 19/12/1990, au prix de 155 000 € (Hors branchements et raccordements, papiers peints, peintures, revêtement de sol dans les chambres, qui sont chiffrés dans les travaux qui restent à charge du client. Tarif modifiable sans préavis). Étiquette énergie : A. Différents modèles disponibles pour ce terrain. Assurances et garanties du constructeur comprises (RC professionnelle, décennale, dommage ouvrage).Agence Maisons France Confort de Bayeux (14400)
- Téléphone :
- 02 31 51 20 91
- Adressse :
- 2, rue Saint Loup
14400 Bayeux, France
