Maison neuve à
Caumont-sur-Durance (84510) Référence : JF2385160_1

Prix du projet : Maison avec Terrain

prix 285 000 €

  • 4 pièces
  • 3 chambres
  • Surface maison 83 m2

VENTE d'une maison de 4 pièces (83 m²) à Caumont-sur-Durance
IDÉALEMENT SITUÉE - MAISON 4 PIÈCES NEUVE
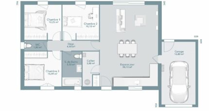
En vente à 38 km de la côte méditerranéenne et à quelques kilomètres d'Avignon, venez découvrir, idéalement située dans Caumont-sur-Durance (84510), cette maison de 4 pièces de plain-pied de 83 m².
Son intérieur est composé de trois chambres, d'une cuisine et d'une salle de bains. La maison est neuve.
Le terrain du bien est de 470 m².
Cette maison se trouve dans un quartier convoité. L'École Primaire Fernand Perrin et l'École Maternelle Pauline Kergomard sont implantées à moins de 10 minutes à pied. Niveau transports, on trouve sept gares à moins de 10 minutes en voiture. L'autoroute A7 et la nationale N129 sont accessibles à moins de 3 km. Il y a un tennis, une bibliothèque, trois commerces, deux boulangeries, une épicerie, un bureau de poste et une poissonnerie à proximité.
Son prix de vente est de 285 000 €.
Prenez contact avec Julien FANTOZZI (tél : 06-70-42-91-83) pour toute information sur le bien.

Mentions légales

Terrain proposé par un partenaire foncier selon disponibilités et autorisation de publicité au prix de 137 000 €. Hors droit d'enregistrement et frais de notaire. Terrain + Maison proposés au prix de 285 000 € (Hors branchements et raccordements, papiers peints, peintures, revêtement de sol dans les chambres. Tarif modifiable sans préavis). Etiquette énergie : A. Différents modèles disponibles pour ce terrain. Assurances et garanties du constructeur (RC professionnelle, décennale, dommage ouvrage, garantie de remboursement de l'acompte, livraison à prix et délai convenu) : https://www.maisons-france-confort.fr/mentions-legales/. HEXAOM Services est enregistré auprès de l'ORIAS en tant que Courtier en financement, Niveau 1, sous le numéro 14001345.

Contactez l'agence de Le Pontet

04 90 03 10 91

    * Champs obligatoires

    Vos informations sont traitées par HEXAOM et transmises à un conseiller commercial qui vous contactera afin de répondre à votre demande. Les plans et images présentés sur notre site sont la propriété d’HEXAOM et ne peuvent pas être reproduits sans son accord. Pour retrouver notre politique de protection des données personnelles et exercer vos droits conformément à la « loi informatique et liberté » cliquez-ici.