Maison neuve à
Cauvicourt (14190) Référence : SC2396211_2

Prix du projet : Maison avec Terrain

prix 273 500 €

  • 6 pièces
  • 4 chambres
  • Surface maison 100 m2

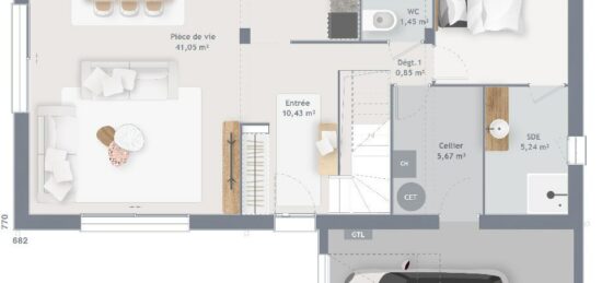
Cauvicourt : maison de 6 pièces (100 m²) à vendre
IDÉALEMENT SITUÉE - MAISON 6 PIÈCES NEUVE
En vente à 27 km de la Manche et à deux pas de Caen, nous sommes heureux de vous présenter cette maison de 6 pièces de 100 m² et de 365 m² de terrain idéalement située dans Cauvicourt (14190). Elle propose quatre chambres, une cuisine et une salle de bains.
C'est une maison de 2 niveaux. Elle est neuve.
La maison se situe dans un secteur convoité. Niveau transports en commun, il y a la gare Moult-Argences à moins de 10 minutes en voiture. Il y a un accès à la nationale N158 à 2 km. On trouve une bibliothèque dans les environs.
Elle est à vendre pour la somme de 273 500 €.
Contactez notre agence (Séverine CHATARD : 06-29-77-10-07) pour plus de renseignements sur la maison. Maisons France Confort Caen est là pour vous accompagner dans tous vos projets immobiliers.

Mentions légales

Terrain proposé par un partenaire foncier selon disponibilités et autorisation de publicité au prix de 62 500 €. Hors droit d'enregistrement et frais de notaire. Terrain + Maison proposés au prix de 273 500 € (Hors branchements et raccordements, papiers peints, peintures, revêtement de sol dans les chambres. Tarif modifiable sans préavis). Etiquette énergie : A. Différents modèles disponibles pour ce terrain. Assurances et garanties du constructeur (RC professionnelle, décennale, dommage ouvrage, garantie de remboursement de l'acompte, livraison à prix et délai convenu) : https://www.maisons-france-confort.fr/mentions-legales/. HEXAOM Services est enregistré auprès de l'ORIAS en tant que Courtier en financement, Niveau 1, sous le numéro 14001345.

Contactez l'agence de Caen

02 31 86 12 21

    * Champs obligatoires

    Vos informations sont traitées par HEXAOM et transmises à un conseiller commercial qui vous contactera afin de répondre à votre demande. Les plans et images présentés sur notre site sont la propriété d’HEXAOM et ne peuvent pas être reproduits sans son accord. Pour retrouver notre politique de protection des données personnelles et exercer vos droits conformément à la « loi informatique et liberté » cliquez-ici.