Maison neuve à
Cazats (33430) Référence : ML2490211_4

Prix du projet : Maison avec Terrain

prix 227 600 €

  • 5 pièces
  • 3 chambres
  • Surface maison 90 m2

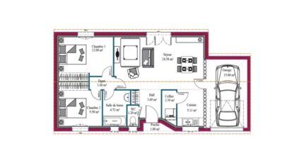
Maison T5 (90 m²) à vendre à Cazats
IDÉALEMENT SITUÉE - MAISON 5 PIÈCES NEUVE
À vendre : nous vous présentons, idéalement située dans Cazats (33430), cette maison de 5 pièces de plain-pied de 90 m². Elle compte trois chambres, une cuisine et une salle de bains.
Le terrain de la propriété s'étend sur 1 600 m².
Cette maison est neuve.
La maison se trouve dans un quartier recherché. Des écoles (de la maternelle au lycée) sont implantées à moins de 10 minutes en voiture, tout comme une structure d'accueil pour la petite enfance à moins de 10 minutes à pied. Les autoroutes A65 et A62 et la nationale N524 sont accessibles à moins de 7 km. On trouve des tennis, quatre bibliothèques, trois bassins de natation, des commerces, des boucheries-charcuteries, deux bureaux de poste, trois supérettes et des épiceries à quelques minutes à peine. Le marché Place du 14 juillet a lieu tous les samedis matin.
Elle est proposée à l'achat pour 227 600 €.
N'hésitez pas à prendre contact avec notre agence (LAGORCE Maryne : O6-81-35-86-92) pour obtenir de plus amples renseignements sur le bien ou sur les modalités de vente.

Mentions légales

Idée de réalisation en modèle prêt à décorer sur l'un de nos terrains partenaires, sous réserve de disponibilités. Voir détails en agence.

Contactez l'agence de Langon

05 56 76 82 20

    * Champs obligatoires

    Vos informations sont traitées par HEXAOM et transmises à un conseiller commercial qui vous contactera afin de répondre à votre demande. Les plans et images présentés sur notre site sont la propriété d’HEXAOM et ne peuvent pas être reproduits sans son accord. Pour retrouver notre politique de protection des données personnelles et exercer vos droits conformément à la « loi informatique et liberté » cliquez-ici.