Maison neuve à
Cenon
(33150) Référence :
SM2286316_1
Prix du projet : Maison avec Terrain
prix 499 500 €
- 4 pièces
- 3 chambres
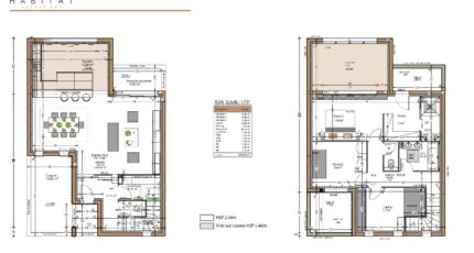
- Surface maison 135 m2
À découvrir : projet de construction secteur Bas Cenon, à seulement 200 m du tram
Dans un cadre résidentiel, ce projet contemporain d'environ 135 m² habitables séduit par son architecture moderne, ses lignes épurées et sa luminosité exceptionnelle.
Pensée pour le confort d'une famille, la maison offre des volumes équilibrés et un agencement optimisé pour un cadre de vie harmonieux.
L'espace nuit comprend quatre chambres, dont une suite parentale avec salle d'eau privative, gage d'intimité. Deux chambres s'ouvrent sur un balcon privatif, tandis qu'une salle de bain supplémentaire vient parfaire cet étage avec élégance.
Au rez-de-chaussée, une vaste pièce de vie baignée de lumière profite de larges baies vitrées et d'une circulation fluide, créant une atmosphère chaleureuse et raffinée. Le choix de matériaux haut de gamme souligne le caractère unique du lieu et s'ouvre sur l'extérieur pour des moments de convivialité.
Un carport complète l'ensemble et met en valeur une architecture contemporaine parfaitement intégrée dans un environnement verdoyant.
Entièrement personnalisable, le plan peut être adapté pour offrir plus de surface ou des aménagements sur mesure, afin de créer une demeure unique qui vous ressemble.
Pour plus d'informations, contactez Sébastien MONACELLI au O7 77 86 55 46, chargé d'affaires pour l'agence SO'9 du Bouscat, spécialiste du sur-mesure.
Mentions légales
Terrain proposé par un partenaire foncier selon disponibilité dans le cadre d’un projet de construction avec So'9 Habitat. Les descriptions, photographies, surfaces et prix illustrant l’annonce sont fournies à titre indicatif et ne sont pas contractuels. Non soumis au DPE. Différents modèles disponibles.Agence So'9 Habitat de Le Bouscat (33110)
- Téléphone :
- 06 73 00 14 32
- Adressse :
- 2 Rue Ferdinand Buisson
33110 Le Bouscat, France