Maison neuve à
Cessenon-sur-Orb (34460) Référence : AB2457820_1

Prix du projet : Maison avec Terrain

prix 195 000 €

  • 2 pièces
  • 1 chambre
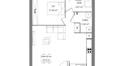
  • Surface maison 50 m2

PROJET DE CONSTRUCTION - Cessenon-sur-Orb : maison de 2 pièces (50 m²)
IDÉALEMENT SITUÉE - MAISON 2 PIÈCES
En vente à 34 km de la côte méditerranéenne et à deux pas de Béziers, ayez le coup de coeur pour cette maison de 2 pièces de plain-pied de 50 m² idéalement située dans Cessenon-sur-Orb (34460). Elle offre une chambre, une cuisine et une salle de bains.
Le terrain de la propriété est de 524 m².
(Carrelage inclus dans toutes les pièces / Raccordements inclus).
Cette maison se trouve dans un quartier recherché. Il y a trois établissements scolaires à moins de 10 minutes à pied et dont le Collège Basile Rouaix, Unité Pédagogique de Proximité Collège Jean Jaurès Saint-Chinian et l'École Élémentaire les Oliviers. L'autoroute A75 et la nationale N9 sont accessibles à moins de 20 km. On trouve un tennis, un commerce, un bureau de poste et une boucherie-charcuterie dans les environs.
Elle est à vendre pour la somme de 195 000 €.
Pour plus d'information contacter Anthony BALLESTER 06 27 21 51 55 Maisons de Manon Béziers pour échanger sur votre projet et réaliser une étude gratuite. (Plan personnalisable). Tous nos ouvrages sont réalisés sur-mesure en fonction de vos attentes et de nos échanges avec vous ainsi que dans le respect de la règlementation RE 2020. Ce projet comporte les garanties suivantes: Contrat de construction CCMI. Dommage/Ouvrage. RC Garantie décennale. Parfaite achèvement. Etude de sol G2. Prix et délais convenu. Garantie de livraison. Garantie financière Pour votre tranquillité nous nous occupons de toutes les formalités administratives.

Mentions légales

Terrain proposé par un partenaire foncier selon disponibilités et autorisation de publicité au prix de 95 000 €. Hors droit d'enregistrement et frais de notaire. Terrain + Maison proposés au prix de 195 000 € (Hors branchements et raccordements, papiers peints, peintures, revêtement de sol dans les chambres. Tarif modifiable sans préavis). Etiquette énergie : A. Différents modèles disponibles pour ce terrain. Assurances et garanties du constructeur (RC professionnelle, décennale, dommage ouvrage, garantie de remboursement de l'acompte, livraison à prix et délai convenu) : https://www.maisons-de-manon.fr/informations-legales/. HEXAOM Services est enregistré auprès de l'ORIAS en tant que Courtier en financement, Niveau 1, sous le numéro 14001345.

Contactez l'agence de Béziers

04 67 00 87 30

    * Champs obligatoires

    Vos informations sont traitées par HEXAOM et transmises à un conseiller commercial qui vous contactera afin de répondre à votre demande. Les plans et images présentés sur notre site sont la propriété d’HEXAOM et ne peuvent pas être reproduits sans son accord. Pour retrouver notre politique de protection des données personnelles et exercer vos droits conformément à la « loi informatique et liberté » cliquez-ici.