Maison neuve à
Ceyras
(34800) Référence :
LR2463212_1
Prix du projet : Maison avec Terrain
prix 335 000 €
- 5 pièces
- 3 chambres
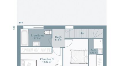
- Surface maison 92 m2
VENTE : maison de 5 pièces (92 m²) à Ceyras
IDÉALEMENT SITUÉE - MAISON 5 PIÈCES NEUVE
À vendre situé à 8 minutes Clermont L'Hérault, à 12 minutes de Gignac, à 40 minutes de Montpellier et de Béziers, nous vous présentons cette maison de 5 pièces de 92 m² sur 342 m² de terrain idéalement située dans Ceyras (34800).
C'est une maison de 2 niveaux. Elle comporte trois chambres, une cuisine et trois salles de bains. Cette maison est neuve.
Le bien est situé dans un quartier attractif. L'École Primaire les Oliviers se trouve à moins de 10 minutes à pied. Les autoroutes A75 et A750 sont accessibles à moins de 2 km. Il y a un tennis à quelques minutes à peine.
Il est à vendre pour la somme de 335 000 €.
Prenez contact avec notre agence (ROMERA Lionel : 06-30-39-77-79) pour obtenir de plus amples informations sur la maison, sur les modalités de vente ou sur les démarches à suivre. Maisons France Confort Montpellier vous accompagne à toutes les étapes de l'achat et dans tous vos projets immobiliers.
Annonce proposée par un Agent Commercial Partenaire.
Mentions légales
Terrain proposé par un partenaire foncier selon disponibilités et autorisation de publicité au prix de 115 000 €. Hors droit d'enregistrement et frais de notaire. Terrain + Maison proposés au prix de 335 000 € (Hors branchements et raccordements, papiers peints, peintures, revêtement de sol dans les chambres. Tarif modifiable sans préavis). Etiquette énergie : A. Différents modèles disponibles pour ce terrain. Assurances et garanties du constructeur (RC professionnelle, décennale, dommage ouvrage, garantie de remboursement de l'acompte, livraison à prix et délai convenu) : https://www.maisons-france-confort.fr/mentions-legales/. HEXAOM Services est enregistré auprès de l'ORIAS en tant que Courtier en financement, Niveau 1, sous le numéro 14001345.Agence Maisons France Confort de Montpellier (34000)
- Téléphone :
- 04 67 64 85 11
- Adressse :
- 48, impasse Louis Ferdinand Herold
34000 Montpellier, France
