Maison neuve à
Chailly-en-Brie
(77120) Référence :
CY2281715_1
Prix du projet : Maison avec Terrain
prix 255 000 €
- 5 pièces
- 3 chambres
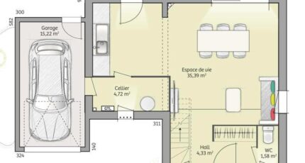
- Surface maison 90 m2
VENTE d'une maison de 5 pièces (90 m²) à Chailly-en-Brie
MAISON 5 PIÈCES NEUVE - PROCHE DE MEAUX
À vendre : à deux pas de la gare de Coulommiers (Paris à 1 h par le Transilien P), nous sommes heureux de vous proposer cette maison de 5 pièces de 90 m² et de 890 m² de terrain à Chailly-en-Brie (77120). Elle dispose de trois chambres, d'une cuisine et d'une salle de bains.
Cette maison compte 2 niveaux. Elle est neuve.
L'École Primaire Geoffroy Saint-Hilaire est implantée à moins de 10 minutes à pied. Niveau transports en commun, il y a les gares Coulommiers, Mouroux et Faremoutiers-Pommeuse à moins de 10 minutes en voiture. On trouve un tennis à proximité.
Elle est proposée à l'achat pour 255 000 €.
Contactez Cedric YAHIAOUI (06-66-57-00-63) pour toute question sur la propriété ou sur les modalités de vente. Maisons France Confort Magny-le-Hongre est là pour vous accompagner dans toutes vos démarches.
Annonce proposée par un Agent Commercial Partenaire.
Mentions légales
Terrain proposé par un partenaire foncier selon disponibilités et autorisation de publicité au prix de 77 000 €. Hors droit d'enregistrement et frais de notaire. Maison proposée, avec un contrat de construction de maison individuelle, dans le cadre de la loi du 19/12/1990, au prix de 178 000 € (Hors branchements et raccordements, papiers peints, peintures, revêtement de sol dans les chambres, qui sont chiffrés dans les travaux qui restent à charge du client. Tarif modifiable sans préavis). Étiquette énergie : A. Différents modèles disponibles pour ce terrain. Assurances et garanties du constructeur comprises (RC professionnelle, décennale, dommage ouvrage).Agence Maisons France Confort de Magny-le-Hongre (77700)
- Téléphone :
- 01 84 80 92 96
- Adressse :
- 11 rue de Courtalin
77700 Magny-le-Hongre, France
