Maison neuve à
Chalamont
(01320) Référence :
SG2620_2
Prix du projet : Maison avec Terrain
prix 258 500 €
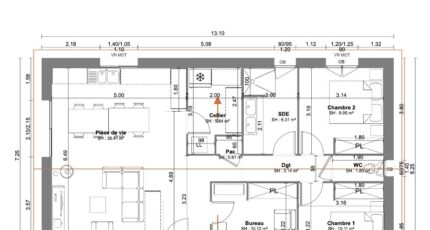
- 4 pièces
- 3 chambres
- Surface maison 85 m2
VENTE : maison T4 (85 m²) à Chalamont
PROCHE DE BOURG-EN-BRESSE - MAISON 4 PIÈCES NEUVE
En vente à deux pas de Bourg-en-Bresse, à Chalamont (01320), laissez vous charmer par cette maison de 4 pièces de plain-pied de 85 m². Conçue de plain-pied, elle offre trois chambres, une cuisine et une salle de bains.
Le terrain de la propriété est de 404 m².
Cette maison est neuve.
Une école primaire est implantée dans le quartier. Les autoroutes A42 et A40 sont accessibles à moins de 15 km. Il y a un tennis, deux boulangeries, quatre commerces, une boucherie-charcuterie, une supérette et un bureau de poste dans les environs.
Elle est à vendre pour la somme de 258 500 €.
N'hésitez pas à prendre contact avec notre agence (GABRILLARGUES Sébastien : 06-81-77-73-67) pour plus d'informations sur ce bien ou sur les modalités de vente. Maisons France Confort Bourg-en-Bresse est là pour vous accompagner dans toutes vos démarches.
Annonce proposée par un Agent Commercial Partenaire.
Mentions légales
Terrain proposé par un partenaire foncier selon disponibilités et autorisation de publicité au prix de 94 900 €. Hors droit d'enregistrement et frais de notaire. Terrain + Maison proposés au prix de 258 500 € (Hors branchements et raccordements, papiers peints, peintures, revêtement de sol dans les chambres. Tarif modifiable sans préavis). Etiquette énergie : A. Différents modèles disponibles pour ce terrain. Assurances et garanties du constructeur (RC professionnelle, décennale, dommage ouvrage, garantie de remboursement de l'acompte, livraison à prix et délai convenu) : https://www.maisons-france-confort.fr/mentions-legales/. HEXAOM Services est enregistré auprès de l'ORIAS en tant que Courtier en financement, Niveau 1, sous le numéro 14001345.Agence Maisons France Confort de Bourg-en-Bresse (01000)
- Téléphone :
- 04 74 14 04 47
- Adressse :
- 20, rue Gabriel Vicaire
01000 Bourg-en-Bresse, France