Maison neuve à
Challans
(85300) Référence :
CM2489774_4
Prix du projet : Maison avec Terrain
prix 299 990 €
- 5 pièces
- 3 chambres
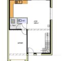
- Surface maison 90 m2
Camille MORICE tél : 06-71-72-13-06
Challans : maison de 5 pièces (90 m²) à vendre
MAISON 5 PIÈCES NEUVE
À 17 km de la côte atlantique, LMP Constructeur Challans vous propose cette maison de 5 pièces de 90 m² et de 357 m² de terrain à Challans (85300). Elle comporte trois chambres, une cuisine et une salle de bains.
Cette maison compte 2 niveaux. Elle est neuve.
Il y a des établissements scolaires de tous types (de la maternelle au lycée) à moins de 10 minutes à pied, tout comme deux crèches. Niveau transports, on trouve la gare Challans à quelques pas du bien. Il y a un tennis, des commerces, deux boucheries-charcuteries, une poissonnerie, un bureau de poste et quatre épiceries dans les environs.
Son prix de vente est de 299 990 €.
Contactez notre agence (MORICE Camille : 06-71-72-13-06) pour plus de renseignements sur cette maison, sur les démarches à suivre ou sur les modalités de vente.
Camille MORICE tél : 06-71-72-13-06
Mentions légales
Terrain proposé par un partenaire foncier selon disponibilités et autorisation de publicité au prix de 70 000 €. Hors droit d'enregistrement et frais de notaire. Terrain + Maison proposés au prix de 299 990 € (Hors branchements et raccordements, papiers peints, peintures, revêtement de sol dans les chambres. Tarif modifiable sans préavis). Etiquette énergie : A. Différents modèles disponibles pour ce terrain. Assurances et garanties du constructeur (RC professionnelle, décennale, dommage ouvrage, garantie de remboursement de l'acompte, livraison à prix et délai convenu) : https://www.lmp-constructeur.com/mentions-legales/.Agence Logis du Marais Poitevin de Challans (85300)
- Téléphone :
- 02 51 55 17 74
- Adressse :
- 4 Place du Champ de Foire
85300 Challans, France
