Maison neuve à
Chamaret
(26230) Référence :
OP2403168_1
Prix du projet : Maison avec Terrain
prix 258 000 €
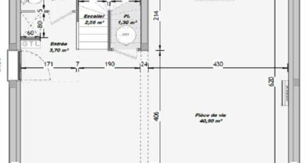
- 4 pièces
- 3 chambres
- Surface maison 93 m2
Vous avez envie de fonctionnalité, de lignes épurées et aussi d'un jardin !
Bienvenue dans votre maison ACCESS ETAGE 93.
Optimisée, elle s'adapte à son environnement avec de larges ouvertures sur le jardin et des espaces de vie chaleureux et lumineux.
A la fois chic et élégante cette maison de 93 m² offre de beaux atouts : une entrée avec toutes les commodités, placards, WC, un séjour de près de 41 m² pour le salon et la salle à manger ouverte sur la cuisine. À l'étage, la composition du plan continue avec 3 belles chambres équipées de rangements, et une salle de bains. Le charme d'une maison moderne et l'élégance des matériaux d'aujourd'hui pour ravir toute la famille.
Vous souhaitez en voir plus, contactez-nous !
Votre conseiller en construction Olivier PUAUX 06.01.46.37.15 MAISONS FRANCE CONFORT se tient à votre disposition pour en savoir plus à propos de cette habitation, en découvrir d'autres ou bien même créer votre projet personnalisé.
Mentions légales
Terrain proposé par un partenaire foncier selon disponibilités et autorisation de publicité au prix de 103 000 €. Hors droit d'enregistrement et frais de notaire. Terrain + Maison proposés au prix de 258 000 € (Hors branchements et raccordements, papiers peints, peintures, revêtement de sol dans les chambres. Tarif modifiable sans préavis). Etiquette énergie : A. Différents modèles disponibles pour ce terrain. Assurances et garanties du constructeur (RC professionnelle, décennale, dommage ouvrage, garantie de remboursement de l'acompte, livraison à prix et délai convenu) : https://www.maisons-france-confort.fr/mentions-legales/. HEXAOM Services est enregistré auprès de l'ORIAS en tant que Courtier en financement, Niveau 1, sous le numéro 14001345.Agence Maisons France Confort de Montélimar (26200)
- Téléphone :
- 04 75 92 40 32
- Adressse :
- Bd du Président François Mitterrand
26200 Montélimar, France
