Maison neuve à
Champcueil (91750) Référence : DC2489101_1

Prix du projet : Maison avec Terrain

prix 343 516 €

  • 5 pièces
  • 3 chambres
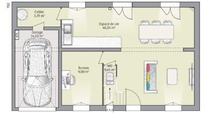
  • Surface maison 90 m2

Maison T5 (90 m²) à vendre à Champcueil
PROCHE DE CRÉTEIL - MAISON 5 PIÈCES NEUVE
En vente : à deux pas de Créteil, à Champcueil (91750), nous vous présentons cette maison de 5 pièces de 90 m² et de 418 m² de terrain. Son intérieur inclut trois chambres, une cuisine et une salle de bains.
Il s'agit d'une maison de 2 niveaux. Elle est neuve.
L'École Élémentaire Chancolia, l'École Maternelle École Publique et le Collège Olympe de Gouges se trouvent à moins de 10 minutes à pied. Côté transports, il y a la ligne de RER D (Ballancourt) ainsi que 10 gares à moins de 10 minutes en voiture. On trouve une bibliothèque, un commerce et un bureau de poste à proximité du bien.
Son prix de vente est de 343 516 €.
Contactez notre agence (David CORDIER : 06-10-79-38-15) pour toute question sur la maison ou sur les modalités de vente. Maisons France Confort Melun vous accompagne dans toutes vos démarches et à toutes les étapes de l'achat.

Annonce proposée par un Agent Commercial Partenaire.

Mentions légales

Terrain proposé par un partenaire foncier selon disponibilités et autorisation de publicité au prix de 118 000 €. Hors droit d'enregistrement et frais de notaire. Terrain + Maison proposés au prix de 343 516 € (Hors branchements et raccordements, papiers peints, peintures, revêtement de sol dans les chambres. Tarif modifiable sans préavis). Etiquette énergie : A. Différents modèles disponibles pour ce terrain. Assurances et garanties du constructeur (RC professionnelle, décennale, dommage ouvrage, garantie de remboursement de l'acompte, livraison à prix et délai convenu) : https://www.maisons-france-confort.fr/mentions-legales/. HEXAOM Services est enregistré auprès de l'ORIAS en tant que Courtier en financement, Niveau 1, sous le numéro 14001345.

Contactez l'agence de Melun

01 64 14 43 20

    * Champs obligatoires

    Vos informations sont traitées par HEXAOM et transmises à un conseiller commercial qui vous contactera afin de répondre à votre demande. Les plans et images présentés sur notre site sont la propriété d’HEXAOM et ne peuvent pas être reproduits sans son accord. Pour retrouver notre politique de protection des données personnelles et exercer vos droits conformément à la « loi informatique et liberté » cliquez-ici.