Maison neuve à
Champigny
(89340) Référence :
AD2318442_1
Prix du projet : Maison avec Terrain
prix 242 800 €
- 5 pièces
- 3 chambres
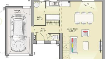
- Surface maison 90 m2
Champigny : maison de 5 pièces (90 m²) à vendre
IDÉALEMENT SITUÉE - MAISON 5 PIÈCES NEUVE
À vendre : à deux pas de Sens, nous vous proposons cette maison de 5 pièces de 90 m² et de 1 020 m² de terrain idéalement située dans Champigny (89340). Son intérieur se divise en trois chambres, une cuisine et une salle de bains.
Cette maison compte 2 niveaux. Elle est neuve.
La maison se situe dans un quartier prisé. Il y a l'école élémentaire École Elementaire Publique à moins de 10 minutes à pied et une crèche. Côté transports en commun, on trouve la gare Champigny sur Yonne dans un rayon de 1 km. Il y a un accès à l'autoroute A5 à 10 km. Il y a deux boulangeries et un commerce dans les environs.
Elle est proposée à l'achat pour 242 800 €.
Prenez contact avec notre agence (Anne DELOHEN : 06-30-93-26-67) pour plus d'informations sur la maison ou sur les démarches à suivre. Donnez vie à vos projets immobiliers avec Maisons France Confort Nemours.
Annonce proposée par un Agent Commercial Partenaire.
Mentions légales
Terrain proposé par un partenaire foncier selon disponibilités et autorisation de publicité au prix de 65 000 €. Hors droit d'enregistrement et frais de notaire. Maison proposée, avec un contrat de construction de maison individuelle, dans le cadre de la loi du 19/12/1990, au prix de 177 800 € (Hors branchements et raccordements, papiers peints, peintures, revêtement de sol dans les chambres, qui sont chiffrés dans les travaux qui restent à charge du client. Tarif modifiable sans préavis). Étiquette énergie : A. Différents modèles disponibles pour ce terrain. Assurances et garanties du constructeur comprises (RC professionnelle, décennale, dommage ouvrage).Agence Maisons France Confort de Nemours (77140)
- Téléphone :
- 01 64 28 58 32
- Adressse :
- 16 Avenue Carnot
77140 Nemours, France
