Maison neuve à
Champigny-sur-Marne
(94500) Référence :
IL2317777_3
Prix du projet : Maison avec Terrain
prix 378 000 €
- 5 pièces
- 3 chambres
- Surface maison 90 m2
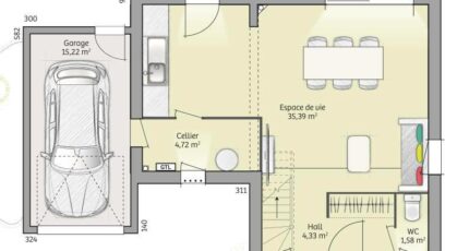
VENTE : maison de 5 pièces (90 m²) à Champigny-sur-Marne
MAISON 5 PIÈCES NEUVE
À deux pas de la station Les Boullereaux Champigny (Paris à 20 min par le RER E), nous vous proposons à vendre à Champigny-sur-Marne (94500), cette maison de 5 pièces de 90 m² et de 271 m² de terrain.
Il s'agit d'une maison de 2 niveaux. Elle dispose de trois chambres, d'une cuisine et d'une salle de bains. Cette maison est neuve.
Plusieurs écoles (maternelle, élémentaire et collège) sont implantées à moins de 10 minutes à pied, tout comme quatre structures d'accueil pour la petite enfance. Niveau transports en commun, on trouve quatre lignes de RER (E, A, D et C) ainsi que 26 gares à moins de 10 minutes en voiture. Il y a un tennis, une bibliothèque, des commerces, des boulangeries, trois supermarchés, des épiceries et des boucheries-charcuteries à quelques minutes de la maison. Le marché Centre-Ville anime les environs.
Son prix de vente est de 378 000 €.
Contactez ROUSSEL TOUATI Thomas : 06-67-03-68-69 pour tout renseignement sur la maison ou sur les modalités de vente.
Annonce proposée par un Agent Commercial Partenaire.
Mentions légales
Terrain proposé par un partenaire foncier selon disponibilités et autorisation de publicité au prix de 199 900 €. Hors droit d'enregistrement et frais de notaire. Terrain + Maison proposés au prix de 178 100 € (Hors branchements et raccordements, papiers peints, peintures, revêtement de sol dans les chambres. Tarif modifiable sans préavis). Etiquette énergie : A. Différents modèles disponibles pour ce terrain. Assurances et garanties du constructeur (RC professionnelle, décennale, dommage ouvrage, garantie de remboursement de l'acompte, livraison à prix et délai convenu) : https://www.maisons-france-confort.fr/mentions-legales/. HEXAOM Services est enregistré auprès de l'ORIAS en tant que Courtier en financement, Niveau 1, sous le numéro 14001345.Agence Maisons France Confort de Magny-le-Hongre (77700)
- Téléphone :
- 01 84 80 92 96
- Adressse :
- 11 rue de Courtalin
77700 Magny-le-Hongre, France
