Maison neuve à
Changé
(53810) Référence :
CF2401320_2
Prix du projet : Maison avec Terrain
prix 401 300 €
- 1 pièce
- 1 chambre
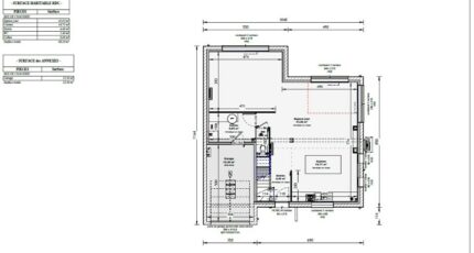
- Surface maison 125 m2
Maison 1 pièce (125 m²) en vente à Changé
IDÉALEMENT SITUÉE - MAISON 1 PIÈCE NEUVE
En vente à 6 km de Laval, nous sommes heureux de vous présenter cette maison 1 pièce de plain-pied de 125 m² et de 510 m² de terrain idéalement située dans Changé (53810). Conçue de plain-pied, elle est composée d'une chambre, d'une cuisine et d'une salle de bains.
Cette maison est neuve.
La maison se trouve dans un quartier convoité. On y trouve des écoles primaires ainsi que dont l'École Primaire Privée Sainte Marie. Niveau transports, il y a trois gares (Laval, Le Genest-Saint-Isle et Louverné) à moins de 10 minutes en voiture. L'autoroute A81 et la nationale N162 sont accessibles à moins de 5 km. On trouve une bibliothèque à quelques minutes du bien.
Son prix de vente est de 401 300 €.
N'hésitez pas à prendre contact avec notre agence (Claire FERBER : 06-61-55-82-88) pour obtenir de plus amples renseignements sur le bien, sur les modalités de vente ou sur les démarches à suivre.
Mentions légales
Terrain proposé par un partenaire foncier selon disponibilités et autorisation de publicité au prix de 68 000 €. Hors droit d'enregistrement et frais de notaire. Terrain + Maison proposés au prix de 401 300 € (Hors branchements et raccordements, papiers peints, peintures, revêtement de sol dans les chambres. Tarif modifiable sans préavis). Etiquette énergie : A. Différents modèles disponibles pour ce terrain. Assurances et garanties du constructeur (RC professionnelle, décennale, dommage ouvrage, garantie de remboursement de l'acompte, livraison à prix et délai convenu) : https://www.maisons-france-confort.fr/mentions-legales/. HEXAOM Services est enregistré auprès de l'ORIAS en tant que Courtier en financement, Niveau 1, sous le numéro 14001345.Agence Maisons France Confort de Bonchamp-lès-Laval (53960)
- Téléphone :
- 02 43 67 00 13
- Adressse :
- 1000, Boulevard des Grands Bouessays
53960 Bonchamp-lès-Laval, France
