Maison neuve à
Changé (53810) Référence : CF2401320_3

Prix du projet : Maison avec Terrain

prix 419 800 €

  • 6 pièces
  • 5 chambres
  • Surface maison 135 m2

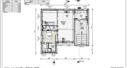
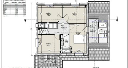
VENTE d'une maison F6 (135 m²) à Changé
IDÉALEMENT SITUÉE - MAISON 6 PIÈCES NEUVE
En vente à quelques kilomètres de Laval, idéalement située dans Changé (53810), venez découvrir cette maison de 6 pièces de 135 m².
Cette maison possède 2 niveaux. Son intérieur propose cinq chambres, une cuisine et deux salles de bains. Cette maison est neuve.
Le terrain de la propriété s'étend sur 510 m².
La maison se situe dans un quartier prisé. Des établissements scolaires maternelles et élémentaires y sont implantés et, parmi lesquels l'École Primaire Privée Sainte Marie. Niveau transports, il y a les gares Laval, Le Genest-Saint-Isle et Louverné à moins de 10 minutes en voiture. L'autoroute A81 et la nationale N162 sont accessibles à moins de 5 km. On trouve une bibliothèque dans les environs.
Elle est à vendre pour la somme de 419 800 €.
N'hésitez pas à prendre contact avec Claire FERBER (06-61-55-82-88) pour tout renseignement sur la propriété ou sur les modalités de vente.

Mentions légales

Terrain proposé par un partenaire foncier selon disponibilités et autorisation de publicité au prix de 68 000 €. Hors droit d'enregistrement et frais de notaire. Terrain + Maison proposés au prix de 419 800 € (Hors branchements et raccordements, papiers peints, peintures, revêtement de sol dans les chambres. Tarif modifiable sans préavis). Etiquette énergie : A. Différents modèles disponibles pour ce terrain. Assurances et garanties du constructeur (RC professionnelle, décennale, dommage ouvrage, garantie de remboursement de l'acompte, livraison à prix et délai convenu) : https://www.maisons-france-confort.fr/mentions-legales/. HEXAOM Services est enregistré auprès de l'ORIAS en tant que Courtier en financement, Niveau 1, sous le numéro 14001345.

Contactez l'agence de Bonchamp-lès-Laval

02 43 67 00 13

    * Champs obligatoires

    Vos informations sont traitées par HEXAOM et transmises à un conseiller commercial qui vous contactera afin de répondre à votre demande. Les plans et images présentés sur notre site sont la propriété d’HEXAOM et ne peuvent pas être reproduits sans son accord. Pour retrouver notre politique de protection des données personnelles et exercer vos droits conformément à la « loi informatique et liberté » cliquez-ici.