Maison neuve à
Chaniers
(17610) Référence :
PD2224111_2
Prix du projet : Maison avec Terrain
prix 335 695 €
- 5 pièces
- 3 chambres
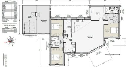
- Surface maison 130 m2
Maison F5 (130 m²) à Chaniers
IDÉALEMENT SITUÉE - MAISON 5 PIÈCES NEUVE
À vendre à 37 km de la côte atlantique et à deux pas de Saintes, notre agence Bermax Construction Saintes est ravie de vous proposer, idéalement située dans Chaniers (Entre Le Maine Allain et le quartier Terrefort), cette maison de 5 pièces de plain-pied de 130 m² et de 1 200 m² de terrain.
Conçue de plain-pied, elle offre trois chambres, une cuisine et deux salles de bains. Cette maison est neuve.
Cette maison est située dans un quartier attractif. L'École Élémentaire Pierre de Ronsard Chaniers et l'École Élémentaire Pierre de Ronsard Chaniers se trouvent à moins de 10 minutes.
Niveau transports en commun, il y a les gares Beillant et Saintes à moins de 10 minutes en voiture. L'autoroute A10 et les nationales N141, N137 et N150 sont accessibles à moins de 10 km.
On trouve un tennis, un commerce, une boucherie-charcuterie, une épicerie et un bureau de poste dans les environs.
Elle est proposée à l'achat pour 335 695 €.
Prenez contact avec Pascal DECOU (tél : 06-46-75-16-45) pour toute question sur la maison ou sur les démarches à suivre.
Faites de vos projets immobiliers une réalité avec Bermax Construction Saintes.
Mentions légales
Terrain proposé par un partenaire foncier selon disponibilités et autorisation de publicité au prix de 55 000 €. Hors droit d'enregistrement et frais de notaire. Maison proposée, avec un contrat de construction de maison individuelle, dans le cadre de la loi du 19/12/1990, au prix de 280 695 € (Hors branchements et raccordements, papiers peints, peintures, revêtement de sol dans les chambres, qui sont chiffrés dans les travaux qui restent à charge du client. Tarif modifiable sans préavis). Étiquette énergie : A. Différents modèles disponibles pour ce terrain. Assurances et garanties du constructeur comprises (RC professionnelle, décennale, dommage ouvrage).Agence Bermax de Saintes (17100)
- Téléphone :
- 05 46 91 55 26
- Adressse :
- 1 impasse de la recouvrance
17100 Saintes, France
