Maison neuve à
Charly-sur-Marne
(02310) Référence :
CY2434085_5
Prix du projet : Maison avec Terrain
prix 215 000 €
- 5 pièces
- 3 chambres
- Surface maison 75 m2
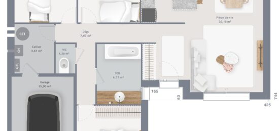
Maison de 5 pièces (75 m²) à vendre à Charly
PROCHE CENTRE-VILLE - MAISON 5 PIÈCES NEUVE
À vendre : à deux pas de la gare de Nogent-L'Artaud-Charly (Paris à 55 min par le Transilien P), nous vous proposons cette maison de 5 pièces de plain-pied de 75 m² et de 337 m² de terrain proche du centre-ville de Charly (02310). Elle est composée de trois chambres, d'une cuisine et d'une salle de bains.
La maison est neuve.
Il y a trois établissements scolaires à moins de 10 minutes à pied et dont le Collège François Truffaut. Côté transports en commun, on trouve trois gares (Nogent-l'Artaud-Charly, Nanteuil-Saâcy et Chézy-sur-Marne) à moins de 10 minutes en voiture. L'autoroute A4 est accessible à 11 km et Meaux est située à 29 km. On trouve un tennis, deux boulangeries, trois commerces, deux supermarchés, un bureau de poste et deux épiceries à proximité.
Elle est à vendre pour la somme de 215 000 €.
N'hésitez pas à prendre contact avec Cedric YAHIAOUI (tél : 06-66-57-00-63) pour tout renseignement sur la propriété, sur les modalités de vente ou sur les démarches à suivre.
Annonce proposée par un Agent Commercial Partenaire.
Mentions légales
Terrain proposé par un partenaire foncier selon disponibilités et autorisation de publicité au prix de 62 000 €. Hors droit d'enregistrement et frais de notaire. Terrain + Maison proposés au prix de 215 000 € (Hors branchements et raccordements, papiers peints, peintures, revêtement de sol dans les chambres. Tarif modifiable sans préavis). Etiquette énergie : A. Différents modèles disponibles pour ce terrain. Assurances et garanties du constructeur (RC professionnelle, décennale, dommage ouvrage, garantie de remboursement de l'acompte, livraison à prix et délai convenu) : https://www.maisons-france-confort.fr/mentions-legales/. HEXAOM Services est enregistré auprès de l'ORIAS en tant que Courtier en financement, Niveau 1, sous le numéro 14001345.Agence Maisons France Confort de Magny-le-Hongre (77700)
- Téléphone :
- 01 84 80 92 96
- Adressse :
- 11 rue de Courtalin
77700 Magny-le-Hongre, France
