Maison neuve à
Charny
(77410) Référence :
CY2282575_1
Prix du projet : Maison avec Terrain
prix 300 000 €
- 5 pièces
- 3 chambres
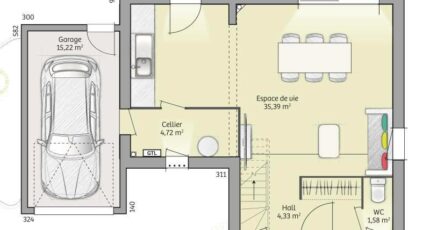
- Surface maison 90 m2
VENTE : maison de 5 pièces (90 m²) à Charny
MAISON 5 PIÈCES NEUVE - PROCHE DE SAINT-DENIS
Au pied du Transilien K (gare de Thieux-Nantouillet, 30 min de Paris), votre agence Maisons France Confort Magny-le-Hongre est heureuse de vous présenter cette maison de 5 pièces de 90 m² et de 220 m² de terrain en vente à Charny (77410).
Cette maison comporte 2 niveaux. Son intérieur inclut trois chambres, une cuisine et une salle de bains. La maison est neuve.
Il y a deux établissements scolaires à moins de 10 minutes à pied et dont le Collège Marthe Gautier. Niveau transports en commun, on trouve la station de RER Mitry-Claye (ligne B) ainsi que six gares à moins de 10 minutes en voiture. On trouve un tennis, un commerce, une boulangerie, une boucherie-charcuterie et deux épiceries à quelques minutes.
Son prix de vente est de 300 000 €.
Prenez contact avec notre constructeur (Cedric YAHIAOUI : 06-66-57-00-63) pour toute information sur la maison.
Annonce proposée par un Agent Commercial Partenaire.
Mentions légales
Terrain proposé par un partenaire foncier selon disponibilités et autorisation de publicité au prix de 126 000 €. Hors droit d'enregistrement et frais de notaire. Maison proposée, avec un contrat de construction de maison individuelle, dans le cadre de la loi du 19/12/1990, au prix de 174 000 € (Hors branchements et raccordements, papiers peints, peintures, revêtement de sol dans les chambres, qui sont chiffrés dans les travaux qui restent à charge du client. Tarif modifiable sans préavis). Étiquette énergie : A. Différents modèles disponibles pour ce terrain. Assurances et garanties du constructeur comprises (RC professionnelle, décennale, dommage ouvrage).Agence Maisons France Confort de Magny-le-Hongre (77700)
- Téléphone :
- 01 84 80 92 96
- Adressse :
- 11 rue de Courtalin
77700 Magny-le-Hongre, France
