Maison neuve à
Château-Gontier-sur-Mayenne (53200) Référence : CF2390675_1

Prix du projet : Maison avec Terrain

prix 357 100 €

  • 4 pièces
  • 4 chambres
  • Surface maison 120 m2

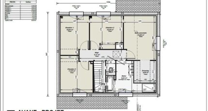
VENTE : maison F4 (120 m²) à Château-Gontier
IDÉALEMENT SITUÉE - MAISON 4 PIÈCES NEUVE
En vente à quelques kilomètres de Laval, Maisons France Confort Bonchamp-lès-Laval vous propose, idéalement située dans Château-Gontier (53200), cette maison de 4 pièces de 120 m².
Cette maison compte 2 niveaux. Son intérieur compte quatre chambres, une cuisine et une salle de bains. Cette maison est neuve.
Le terrain de la propriété s'étend sur 519 m².
Cette maison se situe dans un secteur convoité. Il y a des écoles (de la maternelle au lycée) à moins de 10 minutes à pied. La nationale N162 est accessible à 2 km. On trouve un bassin de natation, des commerces, des boulangeries, deux supermarchés, deux boucheries-charcuteries et une poissonnerie dans les environs. Le marché Centre-Ville anime le quartier chaque jeudi matin.
Elle est à vendre pour la somme de 357 100 €.
Contactez Claire FERBER (06-61-55-82-88) pour plus de renseignements sur la maison et sur les démarches à suivre. Maisons France Confort Bonchamp-lès-Laval vous accompagne à toutes les étapes de votre projet et dans tous vos projets immobiliers.

Mentions légales

Terrain proposé par un partenaire foncier selon disponibilités et autorisation de publicité au prix de 71 000 €. Hors droit d'enregistrement et frais de notaire. Terrain + Maison proposés au prix de 357 100 € (Hors branchements et raccordements, papiers peints, peintures, revêtement de sol dans les chambres. Tarif modifiable sans préavis). Etiquette énergie : A. Différents modèles disponibles pour ce terrain. Assurances et garanties du constructeur (RC professionnelle, décennale, dommage ouvrage, garantie de remboursement de l'acompte, livraison à prix et délai convenu) : https://www.maisons-france-confort.fr/mentions-legales/. HEXAOM Services est enregistré auprès de l'ORIAS en tant que Courtier en financement, Niveau 1, sous le numéro 14001345.

Contactez l'agence de Bonchamp-lès-Laval

02 43 67 00 13

    * Champs obligatoires

    Vos informations sont traitées par HEXAOM et transmises à un conseiller commercial qui vous contactera afin de répondre à votre demande. Les plans et images présentés sur notre site sont la propriété d’HEXAOM et ne peuvent pas être reproduits sans son accord. Pour retrouver notre politique de protection des données personnelles et exercer vos droits conformément à la « loi informatique et liberté » cliquez-ici.