Maison neuve à
Châteauroux (36000) Référence : TM2419292_2

Prix du projet : Maison avec Terrain

prix 167 600 €

  • 4 pièces
  • 3 chambres
  • Surface maison 85 m2

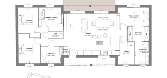
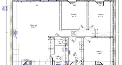
VENTE d'une maison F4 (85 m²) à Châteauroux
EMPLACEMENT PRIVILÉGIÉ - MAISON 4 PIÈCES NEUVE
En vente : bénéficiant d'un emplacement privilégié dans Châteauroux (36000), nous vous présentons cette maison de 4 pièces de plain-pied de 85 m². Elle inclut trois chambres, une cuisine et une salle de bains.
Le terrain de la maison s'étend sur 700 m².
Cette maison est neuve.
Cette maison se situe dans un secteur attractif. Des écoles de tous niveaux sont implantées à moins de 10 minutes à pied, tout comme une crèche. Côté transports, on trouve la gare Châteauroux juste à côté. L'autoroute A20 et la nationale N151 sont accessibles à moins de 5 km. Il y a une bibliothèque, des boulangeries, des commerces, deux supermarchés, trois boucheries-charcuteries et des épiceries à quelques minutes.
Son prix de vente est de 167 600 €.
Contactez notre agence (Thomas MANIERE : 06-15-51-71-54) pour toute information sur le bien, sur les modalités de vente et sur les démarches à suivre. Maisons Bruno Petit MJB Châteauroux vous accompagne à toutes les étapes de votre projet et dans tous vos projets immobiliers.

Mentions légales

Terrain proposé par un partenaire foncier selon disponibilités et autorisation de publicité au prix de 38 000 €. Hors droit d'enregistrement et frais de notaire. Terrain + Maison proposés au prix de 167 600 € (Hors branchements et raccordements, papiers peints, peintures, revêtement de sol dans les chambres. Tarif modifiable sans préavis). Etiquette énergie : A. Différents modèles disponibles pour ce terrain. Assurances et garanties du constructeur (RC professionnelle, décennale, dommage ouvrage, garantie de remboursement de l'acompte, livraison à prix et délai convenu) : https://www.maisons-brunopetit.fr/mentions-legales/.

Contactez l'agence de Châteauroux

02 54 22 66 24

    * Champs obligatoires

    Vos informations sont traitées par HEXAOM et transmises à un conseiller commercial qui vous contactera afin de répondre à votre demande. Les plans et images présentés sur notre site sont la propriété d’HEXAOM et ne peuvent pas être reproduits sans son accord. Pour retrouver notre politique de protection des données personnelles et exercer vos droits conformément à la « loi informatique et liberté » cliquez-ici.