Maison neuve à
Châteauroux
(36000) Référence :
TM2422542_1
Prix du projet : Maison avec Terrain
prix 235 400 €
- 5 pièces
- 4 chambres
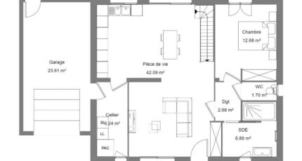
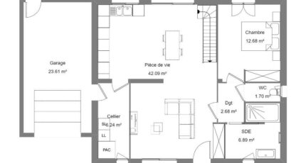
- Surface maison 110 m2
Maison F5 (110 m²) en vente à Châteauroux
EMPLACEMENT PRIVILÉGIÉ - MAISON 5 PIÈCES NEUVE
À vendre : ayez le coup de coeur pour, bénéficiant d'un emplacement privilégié dans Châteauroux (36000), cette maison de 5 pièces de 110 m² et de 600 m² de terrain.
Cette maison compte 2 niveaux. Son intérieur se divise en quatre chambres, une cuisine et deux salles de bains. La maison est neuve.
La maison est située dans un quartier recherché. Des écoles du primaire et du secondaire se trouvent à moins de 10 minutes à pied, tout comme une crèche. Niveau transports en commun, il y a la gare Châteauroux dans un rayon de 1 km. L'autoroute A20 et la nationale N151 sont accessibles à moins de 5 km. On trouve une bibliothèque, des boulangeries, des commerces, deux supermarchés, trois boucheries-charcuteries et un bureau de poste à quelques minutes du bien.
Elle est proposée à l'achat pour 235 400 €.
Contactez notre agence (MANIERE Thomas : 06-15-51-71-54) pour tout renseignement sur la maison. Concrétisez vos projets immobiliers avec Maisons Bruno Petit MJB Châteauroux.
Mentions légales
Terrain proposé par un partenaire foncier selon disponibilités et autorisation de publicité au prix de 38 000 €. Hors droit d'enregistrement et frais de notaire. Terrain + Maison proposés au prix de 235 400 € (Hors branchements et raccordements, papiers peints, peintures, revêtement de sol dans les chambres. Tarif modifiable sans préavis). Etiquette énergie : A. Différents modèles disponibles pour ce terrain. Assurances et garanties du constructeur (RC professionnelle, décennale, dommage ouvrage, garantie de remboursement de l'acompte, livraison à prix et délai convenu) : https://www.maisons-brunopetit.fr/mentions-legales/.Agence Bruno Petit MJB de Châteauroux (36000)
- Téléphone :
- 02 54 22 66 24
- Adressse :
- 360 avenue de la Châtre
36000 Châteauroux, France