Maison neuve à
Châteauroux (36000) Référence : TM2422542_3

Prix du projet : Maison avec Terrain

prix 370 700 €

  • 6 pièces
  • 3 chambres
  • Surface maison 160 m2

Châteauroux : maison de 6 pièces (160 m²) à vendre
EMPLACEMENT PRIVILÉGIÉ - MAISON 6 PIÈCES NEUVE
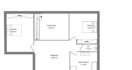
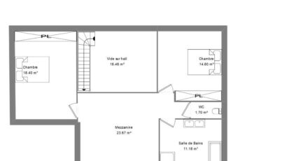
Nous sommes heureux de vous présenter en vente, bénéficiant d'un emplacement privilégié dans Châteauroux (36000), cette maison de 6 pièces de 160 m² et de 600 m² de terrain. Elle est composée de trois chambres, d'une cuisine et de deux salles de bains.
Il s'agit d'une maison de 2 niveaux. Elle est neuve.
La maison se situe dans un quartier convoité. Il y a des écoles (de la maternelle au lycée) à moins de 10 minutes à pied, tout comme une crèche. Niveau transports en commun, on trouve la gare Châteauroux juste à côté. L'autoroute A20 et la nationale N151 sont accessibles à moins de 5 km. Il y a une bibliothèque, des boulangeries, des commerces, deux supermarchés, un bureau de poste et des épiceries à quelques minutes.
Elle est proposée à l'achat pour 370 700 €.
N'hésitez pas à prendre contact avec Thomas MANIERE (06-15-51-71-54) pour toute question sur la maison ou sur les démarches à suivre. Maisons Bruno Petit MJB Châteauroux est là pour vous accompagner dans tous vos projets immobiliers.

Mentions légales

Terrain proposé par un partenaire foncier selon disponibilités et autorisation de publicité au prix de 38 000 €. Hors droit d'enregistrement et frais de notaire. Terrain + Maison proposés au prix de 370 700 € (Hors branchements et raccordements, papiers peints, peintures, revêtement de sol dans les chambres. Tarif modifiable sans préavis). Etiquette énergie : A. Différents modèles disponibles pour ce terrain. Assurances et garanties du constructeur (RC professionnelle, décennale, dommage ouvrage, garantie de remboursement de l'acompte, livraison à prix et délai convenu) : https://www.maisons-brunopetit.fr/mentions-legales/.

Contactez l'agence de Châteauroux

02 54 22 66 24

    * Champs obligatoires

    Vos informations sont traitées par HEXAOM et transmises à un conseiller commercial qui vous contactera afin de répondre à votre demande. Les plans et images présentés sur notre site sont la propriété d’HEXAOM et ne peuvent pas être reproduits sans son accord. Pour retrouver notre politique de protection des données personnelles et exercer vos droits conformément à la « loi informatique et liberté » cliquez-ici.